Multicompartment Residential Building on Korolenko Street, St.Petersburg

Project Details

Project Name
Multicompartment Residential Building on Korolenko Street, St.Petersburg
Location
Korolenko Str.St.PetersburgRussian Federation
Project Types
Project Scope
New Construction
Shared By
A.Len
Project Status
Concept Proposal

Project Description

Location: Bld.5-5A, Korolenko str., Central district,
Project Year: 2014
Phase: Project

The building is a rectangular volume that extends over Baskov lane and its short facade faces Korolenko Street.

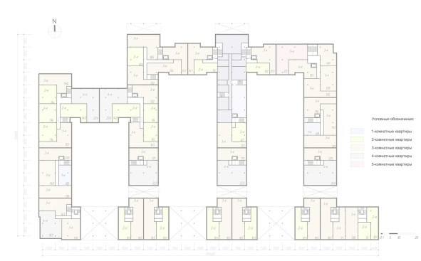
The building consists of three internal comfortable courtyards, which are connected to each other with arches. A variety of paving and planting inside the courtyards create more comfortable space for residents.

The building volume is visually divided into modules that match the surrounding buildings of the Saint-Petersburg’s historical centre.

The house blends into the environment very well due to the mansard roof with entrances on the landscaped terraces that provide additional comfort for the residents.

Each module has its own architectural solution with bas-reliefs implementing along with glass and metal fencing etching. The motives that reflect the place’s historical past are used in the decorative elements. The main of them is the fact that the building of the Lifeguard 1st Artillery Brigade was located on this place.

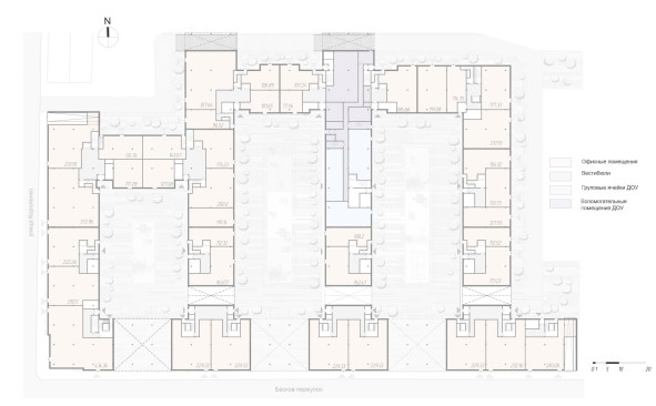
The first floor of the multicompartment residential building is meant for the build-in premises of the office and business purpose and also for the residential sections entrance groups. The complex apartments are situated on the 2-9 floors. The apartments which face Korolenko Street and Baskova alley intersection are planned with the high comfortability level. Children’s educational establishment is provided by plan in the complex central part.

Construction site total area – 24027 sq m
Development total area – 12752.65 sq m
Residential building total area – 119746.46 sq m
Underground parking total area – 17383 sq m
Apartments total area – 70440 sq m
Building volume – 183538.09 cu m
Storeys total number – 5-9
Apartments total number – 1162

Upcoming Events

  • Design Smarter: Leveraging GIS, BIM, and Open Data for Better Site Selection & Collaboration

    Live Webinar

    Register for Free
  • Slate Reimagined: The Surprising Advantages of Slate Rainscreen Cladding

    Webinar

    Register Now
  • The State of Residential Design Today: Innovations and Insights from RADA-Winning Architects

    Webinar

    Register for Free
All Events