Moving Paneling

Project Details

Project Name
Moving Paneling
Location
WashingtonDC
Project Types
Custom
Shared By
dmadsen
Project Status
Built
Size
3,306 ft²

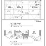
Project Description

Clarification of spaces and a series of consistent door leaves are disguised as paneling; Hiding away a litany of storage and utility spaces, and acting as an entry way to the main space.

Upcoming Events

  • Design Smarter: Leveraging GIS, BIM, and Open Data for Better Site Selection & Collaboration

    Live Webinar

    Register for Free
  • Slate Reimagined: The Surprising Advantages of Slate Rainscreen Cladding

    Webinar

    Register Now
  • The State of Residential Design Today: Innovations and Insights from RADA-Winning Architects

    Webinar

    Register for Free
All Events