MOKSHA -FITNESS AND SPA

Project Details

Project Name
MOKSHA -FITNESS AND SPA
Location
sco -1,swastik vihar,Mansa devi complexPanchkulaHARYANAINDIA134109
Architect
Studio Ardete
Project Types
Healthcare
Project Scope
Interiors
Shared By
abhimanyu
Project Status
Built
Year Completed
2015
Style
Modern
Size
2,000 ft²
Team
Principal Architect: Ar Badrinath Kaleru
Designer: Ar Prerna kaleru
Assistant Architect: Anusha Sharma
Room or Space
Other

Project Description

MOKSHA – FITNESS AND SPA

Project Name : MOKSHA – Fitness and Spa Center

Location : Panchkula (Haryana), India

Program : Fitness and Spa center (Extension to an existing gynmasium)

Area : 2000 sq.ft

Completion: Dec 2015

Budget : 40lacs (INR)

Architectural firm : Studio Ardete (www.studioardete.com)

Principal Designer : Ar. Badrinath Kaleru

Design team : Ar.Prerna Kaleru, Ar. Anusha Sharma

Photographer : Purnesh Dev Nikhanj

The Concept:
Where most of the fitness centers around the world follow set rules of planning and interiors, Moksha was inspired by a will to define a new language for exercise and training centers.
The client desired an extension to the existing gymnasium including a Spa and Spinning studio. This was to be housed in the basement. As a result, the architects were faced with the dual problems of limited space and limited budget.

To infuse the design with the energy required for such a competitive space, the plan was kept simple, yet fluid with spaces merging into each other via views through glazed surfaces. A raw, urban look was aimed for and achieved with the help of overlapping and free standing triangular metal frames, crisscrossed with ropes, providing both, an aesthetic element and stability to the design.

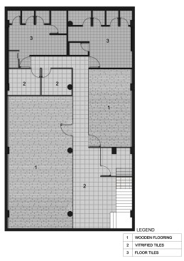
Subtle colors were used to bring out the whimsical elements of the design to the fore, such as unique lighting fixtures and bi-cycles hanging from the ceiling. Flooring was kept darker in contrast with the walls and ceiling, balancing the visuals.

Bi-cycle Dairies and All That Jazz:

Sometimes the different between a good and a great design is something as simple as a the provision of a symbol.

Symbols, used to define and sum up the whole design, have been used in architecture for time immemorial. It is a way to provide the design with something intangible that, even while being insubstantial in comparison to the overall design itself, makes a strong impact on the psyche of the visitor.

Since the architects were looking for a contemporary, yet rugged look, it was decided to make use of old, used bi-cycles and hang them from the ceilings in the passage-way. Treated wooden branches were also used for ceiling design to maintain the theme. To break the monotony of subtle, subdued interiors, large colourful murals and posters are used on studio walls.

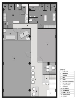
Planning:

The brief specified a requirement for a spa area, a studio and a multipurpose hall, in addition to the usual fitness center spaces. Since these spaces needed to be accommodated in a limited area of 2000sqft in the basement of the existing gymnasium, a simple, linear planning was used.

With the passage acting as the central axis, the spinning studio and the multipurpose hall were arranged on either side of it. The spa, massage rooms and locker rooms were located on the end of the passage, with international style interiors. A small café space was planned next to the reception and waiting area, welcoming the visitor inside.

Metal Frames:

A special feature of the design is the triangulated, free standing metal frames that appear at places all over the area. They are not only placed next to the glass partitions of the studios, but also on the ceilings, completing the design in many ways.

Adding another layer to the interiors, they are overlapped and interlaced with the help of ropes that not only provide stability, but also adds to the aesthetics of the element.

1. SPECIAL CHARACTERSTICS.

Moksha is not the typical fitness center one may come across on a daily basis. It is a study and further, an implication of what fitness design out to be.

The project was to be an extension of an existing gymnasium, allowing it to cater to the increase in the footfall. The space, to be used by young men and women in a competitive environment, needed to translate the energy of its occupants into the design.

To achieve this purpose, a lot of research was done which included similar case studies, library and literature studies wherein similar national and international designs were studied and critically analyzed. Since the center was to temporarily house people indulging in high energy exercises, it had to reflect a similar sensibility in the design. A qualitative research methodology was preferred over a quantitative one to get the best possible results and to make the space reach its highest potential.

Located in the basement of the existing gymnasium facility and occupying an area of about 2000sqft, Moksha was imagined to be open and an unconventional design, despite the space limitations. To achieve this, the plan was kept simple and linear. But to add an element of complexity, layers were added. Steel frames interlaced with ropes were used to give a chic look, while remaining within the modest budget.

The spaces move into one another effortlessly; the interaction between them being gracefully fluid. Glass partitions for the studios add to an element of transparency, providing glimpses of the activities inside, yet separating them from the each other. Another layer of porosity is achieved via the use of overlapping metal frames.

These triangulated, free standing frames are used in combination with the partitions and also on the ceilings, helping to provide a foothold for the light fixtures. They are interlaced with ropes, adding to the overall stability of the design and also helping to achieve a contemporary look.

A raw, urban look was aimed for the project and was achieved using unconventional design idea, such as hanging old, used bi-cycles from the ceiling in the passage way or using treated wooden branches for the ceiling design in the reception area. The colors are subtle, making the user focus on the design itself and giving the whole place, a chic, understated and modern look.

2. MATERIAL AND COLOUR CONCEPT

The project demanded the use of various unconventional ideas to make it more fluid and flexible. As a result, the materials used reflect the same.

Glass partitions are used for the studios, making the overall design open and contemporary and adding an element of transparency to the space. The viewer is allowed glimpses of the activities going on inside the studios, yet is separated from them. There is a visual connectivity knitting the whole space together.

The triangulated frames are made in steel and painted while and rust as per the demands of the location they are being used in. Since, at most of the places they are used next to the glazed surfaces of the studios, they add porosity to the design, thereby, adding another layer to it. Besides, they are used in conjunction with ropes, interlaced between them to provide a degree of stability to the structure, but mostly for aesthetic purposes.

Other unusual materials/ elements are the bi-cycles hung from the ceiling and raw wooden branches.

The colour palette is subtle, making use of light browns, beiges and black so as to enhance the visual quality of the space and make it chic and sophisticated. The flooring is kept light to contrast with the roof and the ceiling.

The studio walls support colourful murals/ posters to break the monotonous theme of the design and make it come alive.

3. SPECIAL FEATURES OF THE MOKSHA

The most distinctive feature of the design is not a single entity but the way it combines all its varied elements together to form a cohesive, aesthetic whole.

Of the various features already mentioned, the one that catches the eye are the bi-cycles. Hanging from the roof in the passage way, they draw the eye upwards where one also find unique lighting fixtures giving the space a sharp yet sophisticated look.

Another important element repeated all throughout the interiors is the metal frames.
Triangulated and overlapping, these frames distinguish the design and give it a character, unlike most of the other fitness spaces. They are used not only in the interior elevations but also on the ceilings, providing a place to affix the light fixtures. These frames are crisscrossed with ropes, another unusual material.

The use of glass is carefully controlled and composed. The glazed studio walls along with the frames provide peaks inside the studios whilst separating the activities of different spaces. The whole idea provides a visual connect to the entire design but does not breach the privacy and identity of the spaces it contains.

4. MAIN CHALLENGES.

One of the main challenges of the design was to arrange the entire space program in a limited area in the basement of the existing gymnasium facility. Being a fitness and spa center, the design was required to be open and flexible, allowing for the spaces to merge into one another without undue hassle.

To achieve this, glass was extensively used, providing a sense of transparency and connectivity, yet still limiting physical interaction between spaces. Acting as partitions, glass allowed for an ease of visual movement while making the space contemporary and urban.

Another challenge was to design the project on a limited budget, forcing the architects to look for unusual, yet eye-catching solution, adding to the user experience and providing a new language for fitness design.

Upcoming Events

  • Design Smarter: Leveraging GIS, BIM, and Open Data for Better Site Selection & Collaboration

    Live Webinar

    Register for Free
  • Slate Reimagined: The Surprising Advantages of Slate Rainscreen Cladding

    Webinar

    Register Now
  • The State of Residential Design Today: Innovations and Insights from RADA-Winning Architects

    Webinar

    Register for Free
All Events