Modular 4, Sustainable Residence, and Prescott Passive House

Project Details

Project Name
Modular 4, Sustainable Residence, and Prescott Passive House
Architect
Studio 804
Project Types
Project Scope
New Construction
Shared By
Mahesh Rajanala
Project Status
Built
Room or Space
Other

Project Description

2011 RADA
Single-Family Housing / Grand

The judges bestowed one collective Grand award on the three entries from Studio 804, the University of Kansas design/build program led by Dan Rockhill. “We want to encourage this direction,” said one juror, commending the studio’s “continued research” into single-family housing solutions.

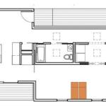
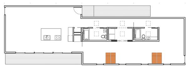
With each project, Rockhill and his students have explored a different facet of residential design and building, often expanding on the previous year’s effort. In 2007, they created Modular 4, a prefab, 1,500-square-foot home in Kansas City, Kan. The next year they shifted their focus away from residential work and onto a sustainable prototype for an arts center in tornado-devastated Greensburg, Kan. “That building really charted the course for our interest in LEED,” Rockhill notes. The studio’s 2009 project, the Sustainable Residence in Kansas City, achieved a LEED Platinum rating. And its 2010 undertaking, the affordable Prescott Passive House (again in Kansas City), not only reached LEED Platinum status, but also is a certified Passive House.

Studio 804’s consistent push for attractive, eco-friendly housing impressed the judges. “We’re trying to prove that you don’t have to give up good design to do sustainable work,” Rockhill says. He and his students have succeeded at that effort time and again. Currently, they’re working on another sustainable project, the new Center for Design Research at the University of Kansas.

Our sister publication, ecohome, highlighted the Prescott Passive House as an affordable spec house for qualified buyers.

Upcoming Events

  • Design Smarter: Leveraging GIS, BIM, and Open Data for Better Site Selection & Collaboration

    Live Webinar

    Register for Free
  • Slate Reimagined: The Surprising Advantages of Slate Rainscreen Cladding

    Webinar

    Register Now
  • The State of Residential Design Today: Innovations and Insights from RADA-Winning Architects

    Webinar

    Register for Free
All Events