Modular 3

Project Details

Project Name
Modular 3
Architect
Studio 804
Project Types
Project Scope
New Construction
Shared By
Rafi
Project Status
Built
Size
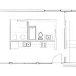
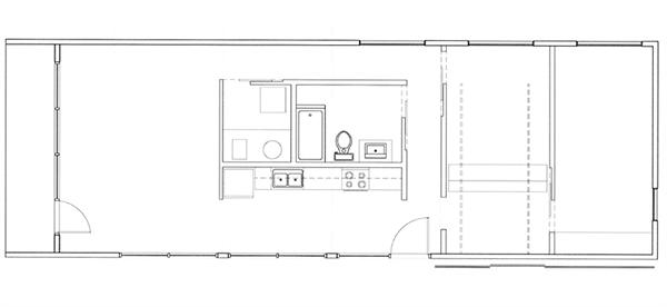
1,200 ft²
Room or Space
Other

Project Description

2007 RADA
Judges Award

This modular residence by Studio 804, architect Dan Rockhill’s student design/build program at the University of Kansas, barely touches the ground. The project sits on exposed-concrete piers, minimizing its impact on the land and paving the way for an energy-efficient insulation system of recycled cellulose. “We wrapped the building like a big burrito,” Rockhill explains. “I think, because we have to wrap the belly of it so tightly, we get a better performance thermally than we do with buildings on traditional foundations.”

He and his 20 students built the home’s six modules in a Lawrence, Kan., warehouse, then trucked them to Kansas City, Kan., and installed them on site. Before it even left the factory, the house sold for $165,000.

“It’s a straightforward, handsome structure,” said one judge. “I like the fact that it’s modular and it works.”

Upcoming Events

  • Design Smarter: Leveraging GIS, BIM, and Open Data for Better Site Selection & Collaboration

    Live Webinar

    Register for Free
  • Slate Reimagined: The Surprising Advantages of Slate Rainscreen Cladding

    Webinar

    Register Now
  • The State of Residential Design Today: Innovations and Insights from RADA-Winning Architects

    Webinar

    Register for Free
All Events