Moderno

Project Details

Project Name
Moderno
Location
Cape CoralFL
Project Types
Production
Shared By
dmadsen
Project Status
Built
Size
3,507 ft²

Project Description

This modern yet warm home was designed for an unusual pie shaped lot that looked down a long waterway. The objective was to create a home that was different from the standard builder fare and incorporate sustainable building practices. The use of angled shape allowed for a full three car courtyard styled garage instead of typical front entry garages in this community. The builder utilized 92% exclusively American made products in the home.

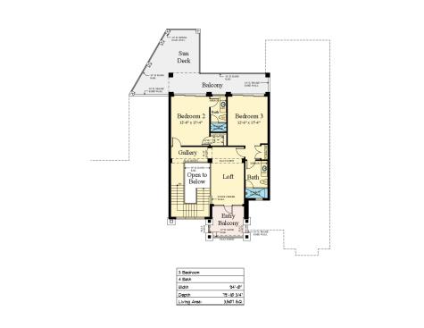
It features and open efficient layout and abandons tradition by eliminating seldom used formal spaces such as Formal Dining and Living Rooms. It instead offers a loft that can be used in a multitude of ways such as billiard room, library, studio or guest lounge area.

The homes incorporation of functional outdoor living spaces give even further adaptability.

The highlight of home is the luxurious resort style Master Retreat with screen divider and specialized closets giving owner’s space to showcase shoes, purses and more. The master bath features a his and her vanity and glass enclosed shower and water closet to give open Asian resort style feel. Master has an outdoor Solana with fireplace.

Upstairs are two Suites with private baths and shared deck with outdoor fireplace.

Upcoming Events

  • Build-to-Rent Conference

    JW Marriott Phoenix Desert Ridge

    Register Now
  • Reimagining Sense of Place: Materiality, Spatial Form, and Connections to Nature

    Webinar

    Register for Free
  • Homes that Last: How Architects Are Designing a Resilient Future

    Webinar

    Register Now
All Events