Modern Speakeasy

Project Details

Project Name
Modern Speakeasy
Project Types
Outbuilding
Shared By
mohan reddy
Project Status
Built
Size
1,376 ft²
Room or Space
Other

Project Description

2006 RADA
Outbuilding / Merit

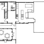
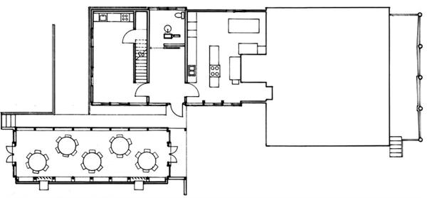
Dan Rockhill may be the only architect in the country who’s designed a home restaurant. The zoning-be-damned outbuilding he fashioned for a Lawrence, Kan., chef serves as the dining room of a not-quite-legal establishment run by the owner and his wife. “There’s no sign, you can’t park in front, and you have to ask where it is,” Rockhill explains. “It attracts people looking for something just quirky enough.”

The concept sounds tailor-made for Rockhill, an iconoclast who takes building as seriously as design. He and project architect David Sain renovated the owners’ kitchen into a commercial-grade one and added on an apartment for the chef’s mother-in-law. The new, transparent dining room sits just a few feet behind the house. Insulated glass, steel cross bracing, and a grass roof fortify the 30-seat structure against cold and wind. “It’s an out-of-your-mind building,” said one judge approvingly. “It’s bold and graphic.”

Upcoming Events

  • Slate Reimagined: The Surprising Advantages of Slate Rainscreen Cladding

    Webinar

    Register Now
  • The State of Residential Design Today: Innovations and Insights from RADA-Winning Architects

    Webinar

    Register for Free
  • Specifying Smarter with Copper-Clad Aluminum (CCA) Metal-Clad Cable

    Webinar

    Register for Free
All Events