Modern Minimalism

Project Details

Project Name
Modern Minimalism
Location
Oro ValleyAZ
Project Types
Single Family
Project Status
Built
Year Completed
2015
Size
3,200 ft²

Project Description

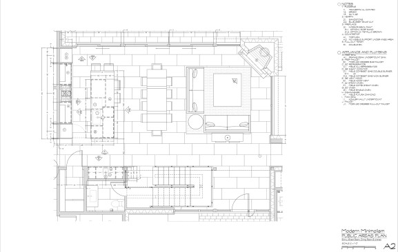
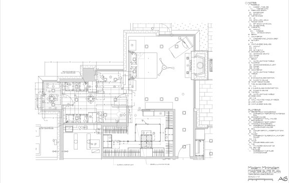
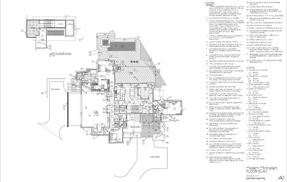
Modern minimalism architecture typically begins in a natural setting, with structures open to their surroundings. Clean, simple and uncomplicated, this exceptional home is defined by vast floor to ceiling widows that offer unobstructed views as well as a calmness, warmth and beauty that minimalistic spaces should exude. These particular clients were looking to escape the extreme winters on the Atlantic coastline with a contemporary vacation retreat that embraces the sundrenched, Southwestern lifestyle. In the surreal backdrop of “the most stunning desert landscape in the world”, a team of architect, builder and interior designer metamorphosed a rugged, untamed property in to a contemporary oasis. Among the granite boulders, mesquite trees and cacti, this unique 3,200 square foot home features three bedrooms, four bathrooms and a loft. Interior design features followed the linear style of the modern desert architecture; maximizing the indoor/outdoor plan and minimizing the threshold between the two. With inspiration coming for the surrounding terrain, the same simplicity and cohesiveness that define the homes natural setting are found within the confines of the interior. Materials and finishing touches were selected to give the home a feeling of warmth and harmony, perfect for a break from the winter rain and snow. As a vacation home, the main elements of design needed to be the exact opposite of their coastal cottage back east. Completely furnishing and accessorizing each room required careful contemplation. Neutral tones are dominant, enhancing instead of distracting from the beauty of the structural elements. Simple lines and practical fabrics convey a casual elegance on furniture, while artwork and accessories provide just a splash of color. Subtle nuances, like a silk, wool and metallic area rug are personalized details that make this house a home. Approaching the outdoor design from a destination perspective, the goal was to create a luxury resort experience, at home. With stunning views across the pool, an alfresco dining area was arranged adjacent to the house. Various seating options were set to offer places for sunning, conversation or just relaxing. For cooking with a view, a wellequipped kitchen satisfies the homes resident barbeque master.

Upcoming Events

  • Design Smarter: Leveraging GIS, BIM, and Open Data for Better Site Selection & Collaboration

    Live Webinar

    Register for Free
  • Slate Reimagined: The Surprising Advantages of Slate Rainscreen Cladding

    Webinar

    Register Now
  • The State of Residential Design Today: Innovations and Insights from RADA-Winning Architects

    Webinar

    Register for Free
All Events