Modern Makeover

Project Details

Project Name
Modern Makeover
Project Types
Single Family
Project Status
Built
Year Completed
2017
Size
2,363 ft²

Project Description

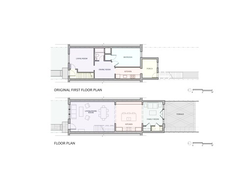
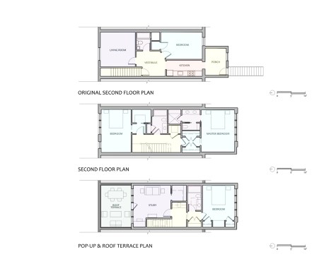
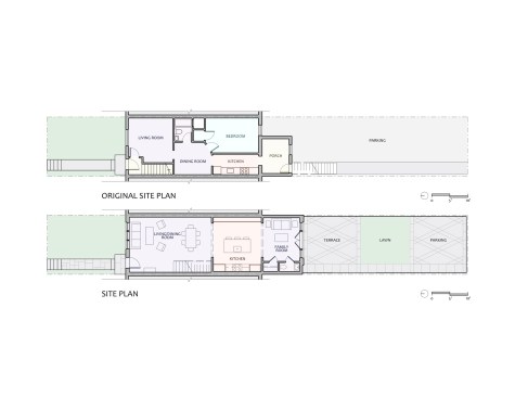
This 1941 structure was originally constructed as a two-unit flat, which had fallen into a state of severe disrepair over the years. New owners purchased the property hoping to connect the existing two levels and make it one large home. Through the design process, they realized the house would not be big enough to meet their needs even with a major renovation of the existing spaces. We proposed a modest extension on the garden side of the house, as well as a sensitive rooftop addition, that would not negatively effect the nature of the existing street. The new roof addition is stepped back from the front façade by 12 feet, providing for a comfortable deck space which looks out onto the street below. By stepping back this addition, the existing roofline was preserved as well as that of the adjacent rowhouses. Large gang windows were added to the existing front façade to give it a presence on the street that it never had before. On the rear façade, all three floors are apparent but designed with expansive glass and historic details and materials in order to relate to the existing structure while completely changing the nature of the backyard space. The interior of the house was completely transformed from a series of dark, small rooms to large, gracious, and bright living space. The new owners wanted a lot of light, so we added many windows and skylights throughout the house. Embracing the modern aesthetic that was hinted to on the existing exterior, we used large casement windows, dark floors, modern stair details, and clean, streamlined mouldings and cabinetry to extend the modern ideas to the interior spaces. The result is a house that fits in carefully with it's neighbors, while still creating a modern, bright, and functional home for contemporary living.

Upcoming Events

  • Design Smarter: Leveraging GIS, BIM, and Open Data for Better Site Selection & Collaboration

    Live Webinar

    Register for Free
  • Slate Reimagined: The Surprising Advantages of Slate Rainscreen Cladding

    Webinar

    Register Now
  • The State of Residential Design Today: Innovations and Insights from RADA-Winning Architects

    Webinar

    Register for Free
All Events