Missouri Bank Crossroads

Project Details

Project Name
Missouri Bank Crossroads
Project Types
Shared By
Xululabs
Project Status
Built

Project Description

Grant Burcham, the CEO and president of Missouri Bank, is adamant that his Kansas City, Mo.–based financial institution is different—a point that is driven home when he flashes a photo of himself and two other bank officers attending the company’s annual costume party, dressed, quite convincingly, as punk rockers. The bank is different. It loans money to odd entrepreneurs. It puts on huge rock-paper-scissors tournaments for customers. And it’s not afraid to embrace its differences: During the recent financial crash, Burcham thought of putting up a billboard with his own personal commentary on one of the banking industry’s more unsavory elements. The mock-up reads: “Dear Goldman Sachs, Because of you, we’re embarrassed to tell people we’re a bank.”

When his father bought the business in 1984, “we had no parking, no drive-through, no ATMs, $15 million in assets, and a $100,000 loan limit,” Burcham says. Over time the bank found itself succeeding by developing relationships with small-business owners that most commercial banks would never grant loans, and quirky entrepreneurs. These include artists, a pet-food store, gallery owners, and even architecture firms. One such firm was local Helix Architecture + Design, which has gone on to design Mo Bank’s (as its customers call it) last three projects: two branch banks and its headquarters renovation.

Before starting, Helix got Burcham’s blessing to conduct three daylong workshops with a select group of bank employees. “We’ve found that leaders often think they know the brand, and where the company is going. But employees also have great ideas about … what the core of their business is,” said project designer Kathy Kelly. “When we asked the bank’s employees what they thought the bank should be like, they said, ‘an art bus … a farmers market … a sidewalk café.’ ”

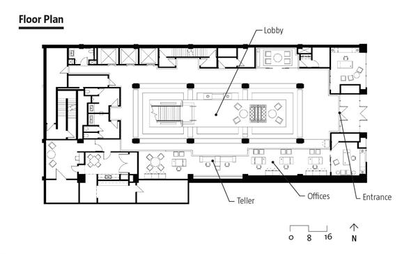
From these offbeat notions emerged a design direction for Helix, defined by characteristics not often associated with a financial institution: transparency, openness, lightness, and plenty of one-on-one contact with customers. A common thread in all three projects, besides the fact that they are all renovation-and-adaptive-reuse projects, is that there are few interior walls. Even in the downtown headquarters, which is a former dry-goods store, handrails at the mezzanine are supported by glass so that customers on the main level can see into offices and conference rooms above. No bullet-proof Plexiglas cages here: “Pretty much if someone said, ‘that’s what banks do,’ we said, ‘then we don’t want that,’ ” Burcham says.

When the bank decided to open a new branch in 2008, Burcham wanted the kind of location where the customers it has courted for years live and work. “The most obvious spot was the Crossroads,” said Helix’s principal-in-charge Jay Tomlinson, AIA, speaking of a once rough-and-tumble zone of old warehouses and light industrial buildings that has emerged as Kansas City’s arts district.

Burcham set his heart on a 1920s-era brick auto repair shop there. “We told him it would be much cheaper to tear it down, but he insisted on reusing the garage,” Tomlinson says. The resulting LEED Gold space has a green roof, restored roof monitors, flooring milled from local barn wood, and storefront soffits and trim made from vinegar vats. The building spans a city block, so customers can enter the bank from either of two parallel streets. “There is a drive-through window, but we’re proud of the fact that 95 percent of the customers walk into the branch to bank,” Burcham says.

In 2010, the Brookside neighborhood became Mo Bank’s latest conquest. It is home to the city’s growing group of urban professionals and one of the city’s oldest suburban shopping centers. An underutilized 1930s car dealership was perfect for a combination walkup–drive-through branch. Helix repurposed the dealership’s central service bays as a drive-through, and, in keeping with the theme of transparency, drivers view tellers through large glass windows, as opposed to tiny video monitors.

Mo Bank’s success is due in no small part to its use of architecture to attract customers and build loyalty. “We think that you don’t have to hate your bank,” Burcham says. “Some people think that’s just the deal. But you don’t.”

———————————————————————

Project Credits
Missouri Bank Crossroads

Client Grant Burcham | Missouri Bank and Trust
Architect Helix Architecture + Design, Kansas City, Mo.—Jay Tomlinson, AIA (principal-in-charge); Bryan Gross, AIA (project manager, project designer); Jacob Palan (project architect)
Interior Designer, Landscape Architect, Lighting Designer Helix Architecture + Design
Collaborating Artists Adam Jones and Jesse Small
Collaborating Architect El Dorado Architects (furniture design and fabrication)
Mechanical/Electrical Engineer Sys-Tek
Structural Engineer Structural Engineering Associates
Civil Engineer Taliaferro & Browne
Geotechnical Engineer and Materials Testing Terracon
General Contractor HarenLaughlin Construction
Recycled Materials Sourcing Adam Jones
Size 7,500 square feet
Cost $1.9 million ($80,000 for furniture)
Materials and Sources

Concrete Intec Construction Co. intecconstruction.com; Gerdau Corp. gerdau.com/longsteel; HarenLaughlin Construction harenlaughlin.com; Pia Designs (concrete countertop aggregate) piadesigns.com
Flooring Adam Jones (salvaged pine flooring)
Furniture El Dorado Architects eldo.us
Glass Carter Glass Co. carterglass.net; ITI Glass (insulated glass) itiglass.com
Gypsum USG Corp. usg.com
Millwork Adam Jones (salvaged cypress soffit and storefront trim)
Roofing GreenGrid (green-roof system) greengridroofs.com
Walls Daltile (wall tile) daltile.com
Windows, Curtainwalls, and Doors Carter Glass Co. carterglass.net; Eggers Industries (wood doors) eggersindustries.com; Adam Jones (salvaged sliding freight door); SunGlo Skylight Products sungloskylights.com
Missouri Bank Downtown

Client Grant Burcham | Missouri Bank and Trust
Architect Helix Architecture + Design, Kansas City, Mo.— Jay Tomlinson, AIA (principal-in-charge); Bryan Gross, AIA (project manager); Kathy Kelly (project designer); Jacob Palan (project architect)
Interior Designer Helix Architecture + Design—Mia Lechlitner
Mechanical/Electrical Engineer Sys-Tek
Structural Engineer SEA
General Contractor Haren Laughlin
Lighting Designer Derek Porter Studio
Size 15,300 sf total (8,800 sf at first floor; 6,500 sf at mezzanine floor)
Cost $1.4 million ($250,000 for furniture)
Materials and Sources

Carpet Bentley Prince Street (Iconic broadloom) bentleyprincestreet.com
Furniture Tuohy (workstations and casegoods) tuohyfurniture.com; Allsteel (task chairs) allsteeloffice.com; Vitra (conference room chairs) vitra.com; Bright Chair Co. (lounge chairs and sofa) brightchair.com
Glass C.R. Laurence Co. (1/2″ tempered-glass railing system) crlaurence.com
Lighting Chris Ferguson (custom fixture)
Millwork SquareOneStudio (walnut and back-painted glass, painted MDF and Corian countertop) sqonestudio.com
Windows, Curtainwalls, and Doors Dirtt (interior glazed wall system and doors) dirtt.net
Missouri Bank Brookside

Client Grant Burcham | Missouri Bank and Trust
Architect Helix Architecture + Design, Kansas City, Mo.—Jay Tomlinson, AIA (principal-in-charge, project designer); Brad Kingsley (project architect); Joe Jimenez, AIA (project manager)
Interior Designer Helix Architecture + Design
Collaborating Artist Archie Scott Gobber
Collaborating Architect El Dorado Architects (furniture design/fabrication)
Mechanical/Electrical Engineer Lankford and Associates
General Contractor Haren Laughlin
Size 5,000 square feet
Cost $340,000
Materials and Sources

Adhesives, Coatings, and Sealants Diversey (JonCrete Superior Adhesion Sealer) diversey.com
Appliances Whirlpool Corp. whirlpool.com; Sharp Electronics Corp. sharpusa.com
Carpet InterfaceFlor interfaceflor.com
Ceilings CertainTeed Corp. (ceiling tile) certainteed.com; Chicago Metallic Corp. (ceiling grid) chicagometallic.com
Furniture El Dorado Architects eldo.us
Glass Oldcastle BuildingEnvelope oldcastlebe.com
Gypsum National Gypsum Co. nationalgypsum.com
Insulation Owens Corning owenscorning.com
Paints and Finishes Kwal Paint kwalpaint.com
Seating Allsteel (stools and chairs) allsteeloffice.com; American Leather (Luxe chair and loveseat) americanleather.com
Walls Daltile (wall tile) daltile.com
Wayfinding Star Sign Co. starsigncompany.com
Windows, Curtainwalls, and Doors Efco Corp. (aluminum storefront) efcocorp.com; Eggers Industries (wood doors) eggersindustries.com; Commercial Openings (hollow metal doorframes) commercialopenings.com

Toolbox
Kansas City’s art and architecture community is an integral part of Mo Bank’s identity, having served as the core of the bank’s customer base for years—and supporting the arts is important to building loyalty. The bank’s branches often exhibit the work of local artists (either inside, or on rooftop billboards), but for the company’s Brookside branch, the bank wanted to work directly with a local artist. It turned to Art Through Architecture (AtA), a program sponsored by arts organization the Charlotte Street Foundation and AIA Kansas City, to help facilitate that relationship. AtA provides resources and support to any business interested in integrating local artists’ work into building projects.

Kansas City artist Archie Scott Gobber won an AtA competition to create the art installation for the Brookside branch. Sited in the car-dealership-service-bay-turned-bank-drive-through that runs through the center of the bank branch building, his 90-foot-long piece is composed of oversized, backlit, and hand-painted aluminum letters that spell out “dream” mounted over a backdrop of blue, black, and yellow stripes.

Gobber’s work centers around wordplay and supergraphic presentations of letters. “I had been working on the theme of ‘dream big, American dreams,’ ” he says. “Missouri Bank is all about dreams—making dreams come true. I knew this would work here.”

Helix’s Jay Tomlinson, AIA, says that the sign has become so well-known throughout Kansas City, that people often gather in front of it for graduation and wedding pictures—an unusual service for a bank drive-through to provide the neighborhood. “The bank loves having that connection to the community through its art and architecture,” he says.

Upcoming Events

  • Future Place

    Irving, TX

    Register Now
  • Archtober Festival: Shared Spaces

    New York City, NY

    Register Now
  • Snag early-bird pricing to Multifamily Executive Conference

    Newport Beach, CA

    Register Now
All Events