[Misfit]Fit

Project Details

Project Name
[Misfit]Fit
Project Types
Commercial
Project Scope
New Construction
Shared By
katie_gerfen
Project Status
On the Boards/In Progress
Size
32,000 ft²

Project Description

2018 P/A Awards
Honorable Mention

“I like its brutal, rough stack, but it is very systematic at the same time. It is intelligent and gives it a very clear character.” — juror Florian Idenburg, Intl. Assoc. AIA

Batay-Csorba Architects’ latest project for its hometown of Toronto is actuated by a deep-felt connection with the city’s history and a novel conception of its prospective future. The four-story [Misfit]Fit is a new commercial building in Liberty Village, a character-crammed former manufacturing enclave a short ride from downtown that’s lately been heavily colonized by major developers.

Unlike the glassy towers that have followed the influx of new residents, Batay-Csorba’s solution carries with it an architectural echo both of the area’s industrial past and Toronto’s broader architectural heritage: A poured-in-place concrete frame faced in prefabricated concrete cladding, the structure’s rough-hewn aesthetic gestures simultaneously to Liberty Village’s hardscrabble origins and to the 1960s and ’70s Brutalist buildings that dot the city’s landscape—and which have only lately come in for reconsideration by Canadian architecture lovers. The latter is evident especially in [Misfit]Fit’s precast panels, which protrude and recede in a blocky pattern like the rusticated front of some futurist castle. But unlike the often highly rationalized fortresses of the 1960s, this heterodox revival animates the façade by alternating the pattern from panel to panel, preserving the robustness of Brutalism without its heavy-handed stasis.

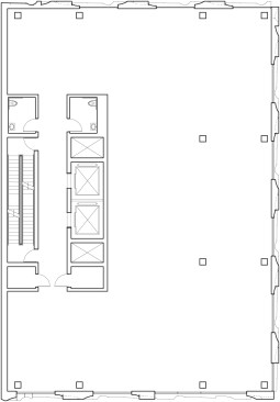
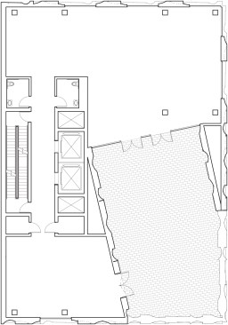
The building packs both its burly aesthetic and its program into a tight site, with 32,000 square feet of offices, street-front retail, and a modest ground-floor lobby all on a lot with a width of less than 70 feet—future developments are expected to eventually sandwich it on both sides. Until they arrive, however, the structure—as well as visitors to its rooftop garden—occupy a privileged perched indeed, surrounded by a sea of open lots, old warehouses, and new condo towers, a stirringly muscular statement standing alone in the street.

Project Credits
Project: [Misfit]Fit, Toronto
Client: Valeri Lavin
Architects: Batay-Csorba Architects, Toronto . Jodi Batay-Csorba, Andrew Batay-Csorba (principals); Michael Fohring (intern architect)
Structural Engineer: Secant Engineers
Urban Planner: SvN Architects + Planners
Size: 32,000 square feet
Cost: Withheld

Read about the other winners of the 65th Annual Progressive Architecture Awards.

FROM THE ARCHITECTS:

[Misfit]fit is a new six-storey, 32,000 square foot boutique office building situated on a small vacant site in Toronto’s Liberty Village. Seeking to build upon the rich lineage of Toronto’s precast concrete history, the proposal provides an alternative to the pervasive glass curtain wall project. The building’s program is comprised of four floors of flexible office space, retail at grade, and a rooftop sculpture garden/ event space. As Liberty Village continues its redevelopment, it’s critical to consider how this can be done appropriately – sensitive to the historical character of the neighbourhood. As one of Toronto’s oldest settled districts, Liberty Village grew primarily as an industrial area, with many large manufacturing companies erecting factories near the train line. While many of these companies have since left with the decline of industrial activity, they’ve left behind their vast, architecturally distinct brick buildings to be repurposed as lofts and creative office space. With such high demand to develop in the area, additional construction is inevitable. The question is, how does one add to this unique building fabric without simply producing what is already there, or reverting to a glass office building which so brashly departs from the character of Liberty Village? To propose an answer to this, we looked both within the larger building context of Toronto and within the district itself. The first step to operating within the context of the site was to study Toronto’s precast concrete project and its history in the city’s development. From iconic buildings such as the University of Toronto’s Medical Sciences Building built in 1969, to lesser-known municipal and educational facilities, this construction method has been leveraged for its efficiency by a vast number of buildings across the city, becoming an integral part of its aesthetic identity. Despite this, it’s been met with great apprehension, with local writers describing some as “oppressive” and “brutalist.” In many cases these sentiments are hard to argue; so often the mass-produced panels are organized in a highly rigid manner, producing a static pattern of solid and void. Designed with the intention of producing a continuous, modulated surface, the aesthetic ultimately results in a monotonous and monolithic volume. Combined with the weightiness of concrete, the building becomes static, and heavy – a dead weight. As a seemingly stagnant project, precast concrete construction has been largely overlooked for decades and replaced by the lightness of glass and steel for the vast majority of institutional and commercial buildings. Perhaps, however, the time is right to revive this project, learning from the reception and reading of past methods, and exploring new ways to once again harness the liveliness of concrete and the efficacy of mass production. Looking through the lens of Liberty Village and its wealth of architectural character offers fertile means for this revitalization. The brick details found within the historical factory buildings produce dual readings of continuity and discontinuity of surface, especially present around window and door openings, at rooflines, and along lines of vertical structure. Here, the complexity of coursing techniques becomes intensified, pronounced, and ornamental as bricks protrude and shift in a variety of ways. Importantly, these details depend on a certain balancing act between elements – there can be slippage, but not too much. These moments of activation are an important diversion from the dead weight common amongst traditional precast projects. While upholding the paramount value of precast concrete’s economy of repetition, the [Misfit]fit leverages advanced fabrication techniques and reusable moulds in order to move the project beyond just pure repetition, while steering clear of mass customization. The panelling system focuses on three main characteristics: panel-to-panel discontinuity, stacking and repetition, and tenuous equilibriums. Individual panels are designed hermetically without regard for the overall aggregation, and without regard for adjacent units. As panels are confronted with one another, their incompatibility is abrupt and glaringly obvious, allowing each element to be read independently against the larger mass. Individual edges and profiles are pronounced, reading not as a singularity but as a rough stacking of objects that have found their equilibrium. Furthering this effect, the corner condition becomes emphasized as a location where panel profiles are fully exposed with discontinuities clear. Apertures are created with the removal of units, a process divorced from the stacking logic which allows for infinite flexibility. The overall aggregation is produced through a vertical repetition where each row is shifted in relationship to one another. Here, similar panels relate imperfectly and just enough to hold together an overall sense of movement. This process breaks decidedly from the traditional strategy of repetition and homogeneity in the precast project, as well as the contemporary parametric practice of continuous surfaces, both of which pursue the perfect match and produce the monolithic volume. Here, the imperfect and tenuous characteristics of the misfit produce new perceptual, formal and spatial effects.

Upcoming Events

  • Build-to-Rent Conference

    JW Marriott Phoenix Desert Ridge

    Register Now
  • Reimagining Sense of Place: Materiality, Spatial Form, and Connections to Nature

    Webinar

    Register for Free
  • Homes that Last: How Architects Are Designing a Resilient Future

    Webinar

    Register Now
All Events