Millwood Fire Station

Project Details

Project Name
Millwood Fire Station
Location
MillwoodNYUSA
Architect
Studio DuBois
Project Types
Project Scope
New Construction
Shared By
ODA
Project Status
On the Boards/In Progress
Year Completed
2015
Style
Modern

Project Description

FROM ODA:

This new Fire Station serves two very important roles. The first is to provide a highly effective facility for the dispatching of the vehicles and the training of the firefighters. The second is to help strengthen the community of firefighters by creating a notable new building that will attract future generations of volunteers.

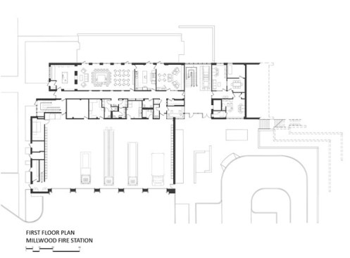
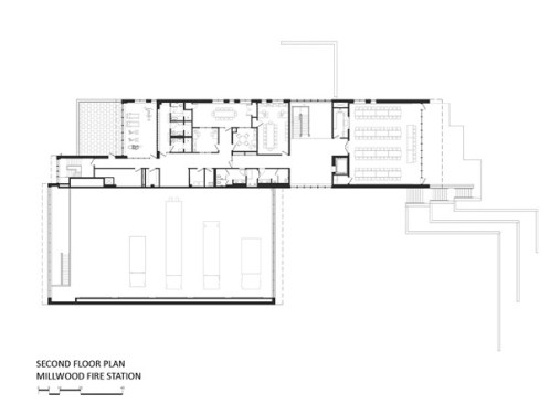
The Station has five bays for storage of the vehicles, along with a large engineered concrete apron for maintenance in good weather. Radiant heat in the Apparatus Bay structure will save energy and provides a heated surface for drying out firefighting gear after a fire. Skylights, a heavily insulated roof, and natural ventilation keep the space comfortable in warmer weather. The new facilities include a Member’s Lounge, a gym and full sized kitchen for frequent company events and meals. The Station is set into a hillside allowing the large Multipurpose Room opening out to outdoor event space at the upper level.

Upcoming Events

  • Build-to-Rent Conference

    JW Marriott Phoenix Desert Ridge

    Register Now
  • Reimagining Sense of Place: Materiality, Spatial Form, and Connections to Nature

    Webinar

    Register for Free
  • Homes that Last: How Architects Are Designing a Resilient Future

    Webinar

    Register Now
All Events