Mid-century Remix

Project Details

Project Name
Mid-century Remix
Location
AtlantaGA
Project Types
Single Family
Project Status
Built
Year Completed
2015
Size
2,804 ft²
Team
Builder: Cablik Enterprises, Builder

Project Description

2017 Builder’s Choice & Custom Home Design Awards
Renovation: Merit

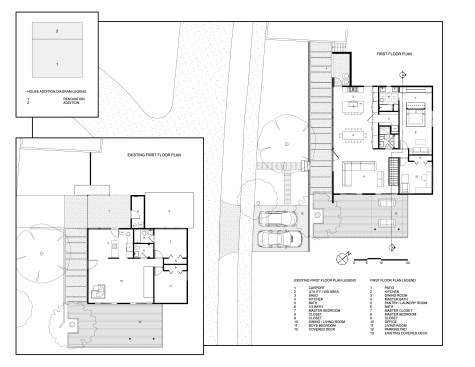
An unremarkable—even quite forgettable—midcentury modern home in an Atlanta neighborhood provided the canvas for a dramatic transformation. Purchased by a couple that formerly lived in California, the clients were drawn to the structure’s low-slung pitched roof, which recalled the iconic work of developer Joseph Eichler in their native state. So the pair charged local firm Robert M. Cain, Architect with a complete renovation of their home that teased out a distinctly new residence while keeping the spirit of the home’s original bones intact.

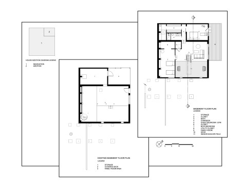
Modest additions expanded the three-bedroom house to 2,804 square feet across two levels. The ground floor was extended to provide open-plan kitchen, dining, and living areas in the front of the structure, with a private master suite to the rear. A previously unfinished basement now sports a family room (including an astro-turfed “soccer field”), a guest room, and children’s bedroom.

The architects maintained the horizontality of the house by extending the low-lying sloped roof to the side, replacing the conventional windows with ribbon windows, and adding glazing in the angled space under the roof—all elements typical of the California Eichler precedent. Diagonal beam brackets were removed, and a light color palette paired with the new windows brighten the interior and achieve the desired look and feel. — E.K.

“The before-and-afters make this project really compelling. The architects did a wonderful job elevating the original design.” – Juror Christiana Moss

Click here for all of the 2017 Builder’s Choice/Custom Home Design Award winners.

From the architects. Tucked into the sea of Virginia Highland (an Atlanta intown neighborhood) English cottage-style homes is an anomaly: a mid-century modern home with Eichleresque design connotations. Californian Joseph Eichler, America’s only “modernist merchant builder”, built nearly 11,000 speculative homes starting in the 1940’s. The clean lines of his homes remain fresh today and have substantially contributed to the revival of interest in mid-century design. Steve Jobs, who grew up in an Eichler home, once stated his “appreciation for Eichler homes instilled a passion for making nicely designed products for the mass market”. Interestingly, Apple co-founder Steve Wozniak grew up in an Eichler home in Sunnyvale, California. How a vaguely California mid-century modern home came to be constructed in Virginia-Highland is not known to the current owners. However, having lived in California, they recognized the form immediately and purchased the house. Our assignment: expand the kitchen and dining area into the unusable carport and enhance the interior and exterior “Eichler effect.” We responded by emphasizing the horizontality found in Eichler designs: extending “wings” to each side for privacy, adding horizontal bands of glass, removing diagonal beam brackets, employing lap siding, adding a new 5’ wide pivot door and (given the immediacy of the house to the street) adding a low horizontal wall to establish a public/private boundary. Parking for the house shifts to an apron linked via a walk.

Upcoming Events

  • Future Place

    Irving, TX

    Register Now
  • Archtober Festival: Shared Spaces

    New York City, NY

    Register Now
  • Snag early-bird pricing to Multifamily Executive Conference

    Newport Beach, CA

    Register Now
All Events