Mid-Century Modern Revived

Project Details

Project Name
Mid-Century Modern Revived
Location
QuogueNew York
Project Types
Single Family
Shared By
katie_gerfen
Project Status
Built
Year Completed
2015
Size
3,830 ft²

Project Description

2018 Residential Architect Design Awards / Restoration/Preservation / Honorable Mention

“I was really taken with the original building and plan, and everything looks very well restored outside and in—even to its detriment at times. It’s a wild and very interesting project.” —Rosalyne Shieh

Charged with saving an early 1960s Abraham Geller–designed house atop a sand dune in Quogue, N.Y., Southport, Conn.–based Austin Patterson Disston Architects had a few things working in its favor: First, the firm’s client had purchased the two-story, 3,830-square-foot house from the estate of the original owner, who had made minimal revisions over the previous half-century. Second, the client acquired many of its original furnishings and appointments with the purchase.

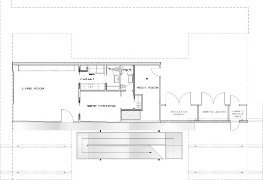
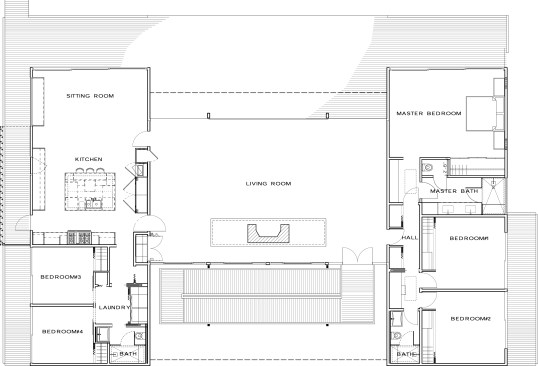
Geller worked for a number of early modernists including William Lescaze, Walter Gropius, and Marcel Breuer—with the influence of each appearing in the house. The original design is memorable for its central butterfly roof expressed in a classic midcentury double diamond motif on each end, bracketed by simple boxes clad in diagonal wood siding. A ground-floor cabana (renovated into guest rooms) is built into the sand dune. The residence’s primary living spaces—including five bedrooms—are located on the upper level.

Despite the intact condition of the house and its contents, a half-century of wear and tear necessitated considerable renovation and reconstruction. The house needed to be jacked up to make it plumb and level, with shoring and structural reinforcement necessary throughout. The dramatic exterior entry ramp on the front façade was reversed to improve circulation, and minor interior modifications included combining the kitchen and sitting room into a single space facing the water view.

The tall-ceilinged living room with clerestory windows under the butterfly roof retains its original large painting by abstract expressionist Norman Bluhm. Custom-made furniture and lamps, vases, and books were part of the client’s purchase, and incorporated into the renovation. Geller’s crisp geometric volumes again float above their Long Island landscape, preserving a particular moment of American design exuberance.

See the full list of winners of the 2018 Residential Architect Design Awards.

Project Credits
Project: Mid-Century Modern Revived, Quogue, N.Y.
Client: Withheld
Architect: Austin Patterson Disston Architects, Southport, Conn. and Quogue, N.Y. . Stuart Disston, AIA (partner-in-charge); Josh Rosensweig (project manager)
Builder: George Vickers Enterprises
Interior Designer: Giovanni Foroni LoFaro
Structural Engineer: Condon Engineering
Landscape Architect: Susan Leitner
Size: 3,830 square feet
Cost: Withheld

Materials and Sources
Appliances: Miele, Wolf
Cabinetry: HenryBuilt
Cladding: Boral (TruExterior); Azek (PVC)
Countertops: Glassos
Doors: Fleetwood
Flooring: La Moda (tile); teak
Paints/Stains: Benjamin Moore
Plumbing/Fixtures: Kohler
Roofing: EPDM
Windows: Fleetwood (cast-aluminum)

Upcoming Events

  • Design Smarter: Leveraging GIS, BIM, and Open Data for Better Site Selection & Collaboration

    Live Webinar

    Register for Free
  • Slate Reimagined: The Surprising Advantages of Slate Rainscreen Cladding

    Webinar

    Register Now
  • The State of Residential Design Today: Innovations and Insights from RADA-Winning Architects

    Webinar

    Register for Free
All Events