Mid-Century Home

Project Details

Project Name
Mid-Century Home
Project Types
Single Family
Project Status
Built
Year Completed
2017
Size
1,700 ft²

Project Description

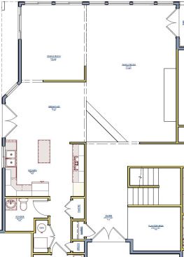
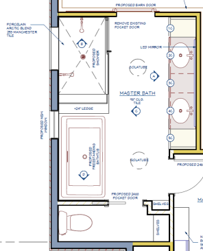
The client felt that the entire downstairs was dark with very little natural light, very outdated, compartmentalized, and didn't accommodate their needs. They desired an open concept for the kitchen, dining, and living areas. For the kitchen specifically, they wanted a chef's kitchen with a large island and something that was easy to clean with little upkeep due to child and dogs running around. Down came the wall that separated the living room and the kitchen, and also the wall that separated the kitchen and dining area, to create an open concept that is perfect for socializing. This is where the scope of the project started to grow and the open concept started to come to life. New windows and glass doors flood the entire area with natural light and visually and physically connect the whole downstairs area with the beautiful backyard patio and views of the mountains – an area perfect for outdoor grilling and al fresco dining. The new flooring throughout the first floor is dog and kid friendly and holds up too all the wear and tear with those fuzzy little paws running around. To update the space, we said goodbye to the black and white appliances, old cabinets, and outdated flooring. To create visual flow, we picked up on the colors and tones from the mid-century era and brought that into the two-toned cabinetry in the kitchen and carried the blue color into the dining room and living room, including using the stone for the new fireplace to, which also highlights the natural scenery of the mountains. The scale of the large island with Cambria countertops and water fall edges creates a beautiful statement and relates directly back to the contemporary mid-century vibe. The quartz countertops are also perfect for little hands. They do not stain and are very easy for upkeep. Removing the small existing pantry and relocating it to what was a small bathroom behind kitchen wall allowed for an ample walk-in storage pantry and gave room for new appliance locations. We wanted to pay homage to the long, low lines of mid-century modern architecture, so a high-contrast color scheme of dark navy blues and creamy white cabinets with white countertops displaying a subtle blue veining to tie it all together was chosen. Enhancing this with a simple subway tile with dark blue grout completes the look! Bringing in warmth, we used a light chocolatey brown wood color stain for the large, chunky mantel and custom-made columns between the family room and kitchen/dining. A custom dark chocolate stained butcher block on the buffet cabinets separating the kitchen and dining rooms was also added to create an unexpected visual interest. For the final touch, beautiful mid-century pendants gracefully hung over the island provided intimate lighting and created rhythm along the length of the island to help break up the expanse of the countertop. Following up by adding recessed lighting and under cabinet lighting allows for homeowner’s to create different lighting effects depending on the atmosphere they want to create. One challenge faced in this section of the project was relocating the sink. The sink was currently facing a window to the outside of the home, but the client wanted to move the sink to be in the large island. To accomplish this, we had to tear up the concrete and redo the plumbing. Centering the fireplace where existing beams already existed also posed a unique challenge to overcome. We ended up making the fireplace enclosure larger to allow enough room to vent the new fireplace without hitting the roof joists. We were able to bend the vent over in the space to miss the roof joist. Ultimately the larger mass of the fireplace lends itself to a better balance of the room as a whole. Another challenge was working with a wall that was two stories tall. Working with the stack stone in a double volume space coupled with building larger faux beams on the ceiling was something that took more time than we had originally anticipated to install the stone façade. Safety is our number one priority and working that high up with material that isn’t “light” takes great care. It took longer than we originally planned, but our workers took their time and were very careful to install it properly and safely. This one large open concept of the kitchen, dining, and family room would become perfect for socializing with friends and family. This remodel would completely transform how this family lived in their home! The master bathroom was outdated and shower was small, dark, and closed off. Client wanted the entire bathroom to be modernized and the 1980's bathtub to be removed. There needed to be more natural light and flow, better functionality, and an enlarged shower and enlarged closet. The mid-century look and feel throughout the rest of the house was continued into the master bathroom by incorporating shaker style cabinets with white and blue accents displayed in the materials. Removing the sunken tub allowed for a large shower and adding clear glass frameless shower doors kept the space open and bright. We decided to incorporate a full-length LED vanity mirror and beautiful stark white under mount rectangular sinks. Dropping the sinks into a quartz countertop and incorporating wall mounted faucets gives the vanity a custom look. Floating shelves to the right of the walk-in closet allows for storage as well as displaying beautiful accessories. We nestled a deep freestanding tub next to the shower and window which makes an open path to the toilet room. Wrapping the window sill in quartz provides space for a wine glass and candles for an evening of relaxing. The clear glass frameless shower door kept the space open and bright and for the shower walls we chose a blueish/grey marble subway tile accented with a dark grey grout. Using whimsical backsplash/shower floor tiles adds a bit of fun and ties it all together. For the floors in the bathroom, we chose a gorgeous 12 x 24” porcelain tile which has a texture that resembles fine linen and brings in warmth to the color scheme. Special challenges in this project included a 1” gradual height difference from one end of the bedroom to the other end of the bathroom. The solution for this was to open up the floor and replace and/or cut the affected floor joists that caused the height variation. The client wanted the solatube in the toilet room rather than in the bathroom, so it took some maneuvering, but we were able to fit it in between the joists.Client also decided to add a second bathroom fan last minute which required change orders and additional consideration on where to put it. The biggest challenge in this portion of the project was the water damage that was found in the master bedroom and uncovered deck outside the bedroom. This required us to replace the floor joists and rebuild the entire deck with new decking material and handrails. The final product is both a beautiful and functional bathroom that is a relaxing retreat. Overall, the house is now a warm, welcoming home that is perfect for an active lifestyle with kids and animals and entertaining guests.

Upcoming Events

  • Build-to-Rent Conference

    JW Marriott Phoenix Desert Ridge

    Register Now
  • Reimagining Sense of Place: Materiality, Spatial Form, and Connections to Nature

    Webinar

    Register for Free
  • Homes that Last: How Architects Are Designing a Resilient Future

    Webinar

    Register Now
All Events