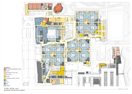
Microsoft Silicon Valley Campus

Project Details

Project Name
Microsoft Silicon Valley Campus
Location
Mountain ViewCA
Architect
WRNS Studio
Project Types
Office
Shared By
Madeleine D’Angelo
Project Status
Built
Year Completed
2020
Size
643,000 ft²

Project Description

This project is a winner of a 2021 AIA COTE Top Ten Award.

FROM AIA:

Silicon Valley is constrained by access, resources and competition for talent. A refresh to Microsoft’s Silicon Valley (MSV) campus meant thinking differently about its region and people. At the project start, two key drivers converged: California was experiencing a serious drought; Microsoft needed to increase campus capacity to address business demand. These drivers revealed opportunity to reflect Microsoft’s mission with a new kind of workplace (in form, function, aesthetic, and connection) that makes evident the symbiotic well-being of people and place. The team employed a holistic, ambitious approach: drivingout and using waste; investing in resilient strategies (blackwater system, thermal storage); designing with reduced carbon through reuse and mass timber; and putting wellness, equity, and community front and center.

The renovation and expansion will house 2,000+ employees in 643,000-sf, a 20% increase in area supporting 40% increase in employee count, all while improving work spaces, supporting the broader community, and revitalizing site health. Potable water is reduced by 57% while landscape increases threefold. A high-performing envelope improves comfort and reduces energy demand by 55%. All systems, besides main cooking functions, are electric, including four thermal energy storage tanks that reduce the central plant size while lowering grid demand during non-peak cooling days.

At two stories, with an expansive occupiable living roof, MSV is organized around a series of courtyards accessed from every work neighborhood, encouraging movement to the green roof and decks, amenities, and views. From operable windows and ceiling fans, to movable walls and furniture, every aspect of design puts user comfort central. The project invites interaction and modification to its spaces, recognizing the importance of diversity and choice. MSV is targeting LEED Platinum, LBC Petal, WELL v2 Pilot, ILFI Net Zero Carbon.

Given the 2020 pandemic, some construction stretched out resulting in select photos showing construction debris.

Upcoming Events

  • Design Smarter: Leveraging GIS, BIM, and Open Data for Better Site Selection & Collaboration

    Live Webinar

    Register for Free
  • Slate Reimagined: The Surprising Advantages of Slate Rainscreen Cladding

    Webinar

    Register Now
  • The State of Residential Design Today: Innovations and Insights from RADA-Winning Architects

    Webinar

    Register for Free
All Events