Mianus River Residence

Project Details

Project Name
Mianus River Residence
Project Types
Custom
Project Scope
New Construction
Shared By
Rafi
Project Status
Built
Size
6,400 ft²

Project Description

2007 RADA
Custom / More Than 3,500 Square Feet / Merit

“This house is almost John Pawson-like; it’s so spare it sings,” said one judge. Another praised its “quiet celebration of connections” and the way it hits the ground.

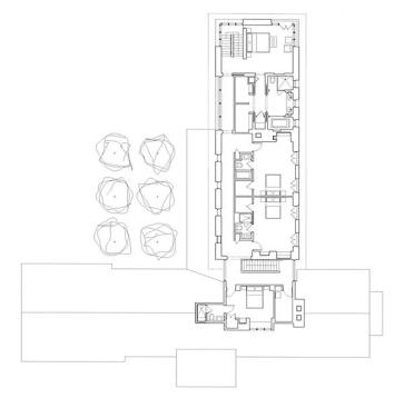
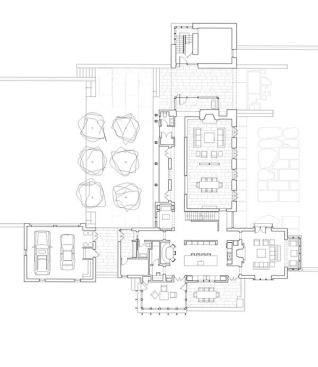
Joeb Moore, AIA, designed two perpendicular masses that track the lay of the land. The two-story “bridge” structure, built into a hill overlooking the river, contains the formal living spaces plus a study on the first floor; bedrooms and a laundry area occupy the second. The structure intersects a one-story bar-shaped volume that parallels the edge of a ravine and houses the project’s informal public spaces. “The forms are almost farmlike, but when you look closely at the detailing, it’s quite modern in its sensibility,” Moore says. Exterior materials are all about simple contrasts—wood siding from a Connecticut barn that ties into the original estate’s outbuildings, rusticated stone from the site, and white stucco.

“There is such strength to it,” a judge concluded. “It moves and is mercurial.”

Upcoming Events

  • Design Smarter: Leveraging GIS, BIM, and Open Data for Better Site Selection & Collaboration

    Live Webinar

    Register for Free
  • Slate Reimagined: The Surprising Advantages of Slate Rainscreen Cladding

    Webinar

    Register Now
  • The State of Residential Design Today: Innovations and Insights from RADA-Winning Architects

    Webinar

    Register for Free
All Events