MHOA Tiny Victories

Project Details

Project Name
MHOA Tiny Victories
Location
AustinTexas
Project Types
Single Family
Project Scope
New Construction
Shared By
Madeleine D’Angelo
Project Status
Built
Year Completed
2020
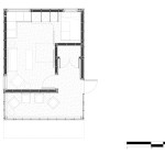
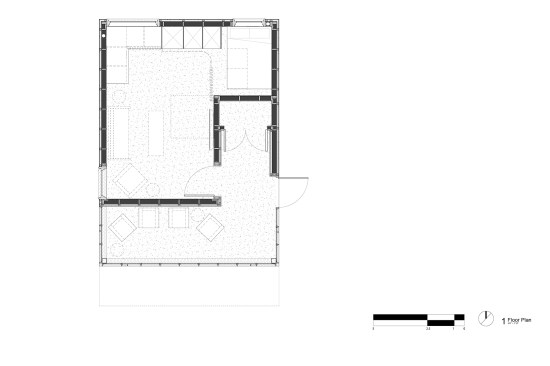
Size
200 ft²

Project Description

This project is part of “Small Houses, Big Impact,” which appeared in the April 2021 issue of ARCHITECT .

It wasn’t until Richard Devore first moved into Community First! that he recognized the stress he carried when he was homeless. No matter where he rested, “it was never your place,” he says. “You’re always somewhere you don’t belong.” MHOA’s 200-square-foot design aimed to provide Richard with a sense of security. “We asked ourselves, should this be a sort of challenging piece of architecture? Or would it be more appropriate to address our users’ familiarity with what an iconic house looks like?” recalls founding principal Michael Hsu, FAIA. “We felt like that was appropriate as opposed to coming in and asking Richard to live in an architectural blob that we might find interesting.” The design team opted for traditional forms but slightly tweaked: They topped an uncentered, hip roof with a flat-topped, glass cupola, which became the fulcrum of the project, filtering daylight into Richard’s home and functioning as a lantern at night. “It becomes an element that communicates with the rest of the village,” project designer Nkiru Mokwe Gelles says. “It’s a powerful way of conveying community and fellowship in the design itself.”

Project Credits
Project: MHOA Tiny Victories, Austin, Texas
Client: Richard Devore, Community First! Village
Architects: Michael Hsu Office of Architecture, Austin. Michael Hsu, FAIA (principal), Micah Land (partner), Nkiru Mokwe Gelles (project designer), Shannon Ruhl (project designer)
Interior Designer: Michael Hsu Office of Architecture
Civil Engineer (Masterplan): L.M. Holder III FAIA
Construction Manager: Sol Frost
Site Superintendent: Alex Long
General Contractor: Risinger Build
Size: 200 square feet
Cost: $50,000

Materials and Sources
Adhesives, Coatings and Sealants: Westcoat ALX at cupola roof
Appliances:Fridgidaire provided by MLF
Cabinets: Gilbert Velasquez (Velasquez Woodworks)
Ceilings: Gilbert Velasquez (Velasquez Woodworks) Baltic Birch Plywood// David Reyes for exterior Hemlock at patio/ patio soffit
Concrete: By Mobile Loaves and Fishes (MLF)
Countertops: Toor Stone Countertops
Exterior Wall Systems: Equitone fiber cement cladding panels, Installed by Velasquez Woodworks
Furniture: Provided by owner
Glass:Arts Glassworks ( Cupola Glass)
HVAC: Friedrich Ductless Mini Split – Supplied by MLF (install labor and materials donated by AirRite)
Insulation: Rockwool wood stud and wall insulation for walls and ceilings donated by Rockwall. Install by Build RH .
Lighting Control Systems: Electrical parts and labor donated by Rick Power Electric
Lighting/ Fan: Hampton Bay exterior wall light, Hunter fan Loki(indoor) Cassius (Outdoor) supplied by MLF
Metal: Metal Guru (Austin) for post bases and cupola steel subframe
Paints and Finishes: Moises painting for clear finishing of all interior and exterior birch, fir, hemlock and painting (Dovetail) at exterior/interior painted wood, doors etc.
Roofing: Standing Seam roof by Straight Solutions. Cupola roofing applied membrane ( Westcoat ALX) by Alex Long and Sol Frost
Structural System: Framing by Madera Frameworks
Walls: Intetior Wall paneling by Gilbert Velasquez
Windows and Doors: Loewen solid wood windows (donated by Loewen and Exclusive Windows and Doors Austin)

Upcoming Events

  • Design Smarter: Leveraging GIS, BIM, and Open Data for Better Site Selection & Collaboration

    Live Webinar

    Register for Free
  • Slate Reimagined: The Surprising Advantages of Slate Rainscreen Cladding

    Webinar

    Register Now
  • The State of Residential Design Today: Innovations and Insights from RADA-Winning Architects

    Webinar

    Register for Free
All Events