MH House

Project Details

Project Name
MH House
Location
DuluthMinnesota
Architect
COULSON
Project Types
Multifamily
Project Scope
New Construction
Project Status
On the Boards/In Progress
Size
2,430 ft²

Project Description

2015 Residential Architect Design Awards

On the Boards
Honorable Mention

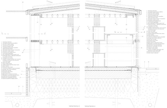
The MH House will accommodate up to four units within two structures totaling 2,430 square feet on a hillside site in Duluth, Minn. By placing vertical circulation along a narrow band on the north side of the structure, local firm COULSON creates an open plan with generous floor-to-ceiling glazing on the other three exposures. Providing kitchenette and bath facilities on each floor (and in the separate, single-story pavilion) allows for maximum flexibility: Each floor can function as an individual unit or be combined as a near-net-zero-energy multilevel residence or in a live/work configuration. —Edward Keegan, AIA

From the Jury

“The entire project is systematized, and it’s designed to meet Passive House standards without looking like a Passive House. ” —Betsy Williamson

Project Credits

Architect: COULSON, Duluth, Minn.—Carly Coulson, AIA
Project Size: 2,430 square feet
Construction Cost: $120 per square foot

Click here to see all of the winners from the 2015 Residential Architect Design Awards.

Upcoming Events

  • Design Smarter: Leveraging GIS, BIM, and Open Data for Better Site Selection & Collaboration

    Live Webinar

    Register for Free
  • Slate Reimagined: The Surprising Advantages of Slate Rainscreen Cladding

    Webinar

    Register Now
  • The State of Residential Design Today: Innovations and Insights from RADA-Winning Architects

    Webinar

    Register for Free
All Events