Mercy Health, Deerfield Medical Center

Project Details

Project Name
Mercy Health, Deerfield Medical Center
Location
5075 Parkway DriveMasonOH45040
Architect
GBBN Architects
Project Types
Healthcare
Project Scope
New Construction
Shared By
GBBN
Project Status
Built
Year Completed
2019
Style
Modern
Size
26,500 ft²

Project Description

Title: Let There Be Light

Project:
Mercy Health, Deerfield Medical Center

Intro:
A new ambulatory care center gives patients a warm, uplifting experience and creates a new prototype for Mercy Health’s growing system.

Story:
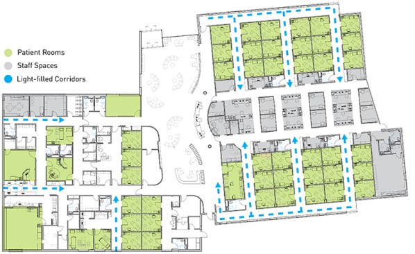
Daylight streaming in throughout the building just feels good. That’s true whether you’re a patient checking in for an appointment, or a doctor dictating notes. By pulling exam rooms away from exterior walls, we’ve let windows do what they do best: flood the lobby, corridors, and workspace with natural light, unimpeded by window treatments This move also allows patient circulation to be completely separated from staff work areas, resulting in better privacy and efficiency for both.

Block units of five clustered components—physician office, medical assistant office and three exam rooms—fit together like Lego pieces to become active collaboration pods. Because the pods are all the same, everyone gets the same experience. It’s modular, consistent, equitable, and repeatable throughout the Mercy Health system.

Window placement and landscaping work together to provide strategic views every step of the way from arrival to departure. Accents from Mercy’s brand palette pop against the neutral tones of the space; wood accents highlight the entry and branching “trees” in the lobby are a whimsical interpretation of the natural world. The building site takes advantage of planned walking paths throughout the neighborhood’s development zone.

Upcoming Events

  • Design Smarter: Leveraging GIS, BIM, and Open Data for Better Site Selection & Collaboration

    Live Webinar

    Register for Free
  • Slate Reimagined: The Surprising Advantages of Slate Rainscreen Cladding

    Webinar

    Register Now
  • The State of Residential Design Today: Innovations and Insights from RADA-Winning Architects

    Webinar

    Register for Free
All Events