Menlo Park Residence

Project Details

Project Name
Menlo Park Residence
Location
243 S Avenida del Palo FierroTucsonAZ85745
Project Types
Single Family
Project Scope
New Construction
Shared By
Brandon Griffith AIA
Project Status
Built
Year Completed
2017
Style
Other
Size
2,333 ft²
Team
Structural Engineer: Mike Harris, PE
Contractor: Paolo de Lorenzo

Project Description

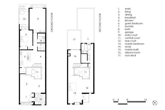
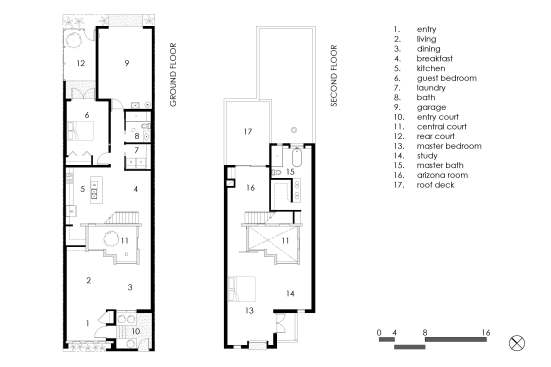
The Menlo Park Residence can be described as a contemporary, Sonoran row house inspired by the historic architecture and climate of Tucson, Arizona. Built on a narrow (24’ wide) lot, adjacent to historic barrios, the design employs the language of historic Tucson vernacular; simple geometric forms, deep set openings, and the interplay between mass and void. The material pallet is simple, based on traditional materials like wood, stucco on masonry, and naturally patinaed metal. The exterior materials and aesthetic are carried inside the home. The narrow project site was challenging given that openings could not occur along two lot lines shared with adjacent properties. To compensate, the project design includes three court yards that introduce natural light and ventilation to the building. The overall design incorporates a number of shading strategies to help mitigate heat gain during the summer months.

Upcoming Events

  • Design Smarter: Leveraging GIS, BIM, and Open Data for Better Site Selection & Collaboration

    Live Webinar

    Register for Free
  • Slate Reimagined: The Surprising Advantages of Slate Rainscreen Cladding

    Webinar

    Register Now
  • The State of Residential Design Today: Innovations and Insights from RADA-Winning Architects

    Webinar

    Register for Free
All Events