Mendocino College Lake Center

Project Details

Project Name
Mendocino College Lake Center
Architect
TLCD Architecture
Project Types
Education
Project Scope
New Construction
Shared By
Carl Servais
Project Status
Built
Year Completed
2013

Project Description

Heritage
The Mendocino College Lake Center is a new small satellite campus situated at a rural fringe of Northern California. The design team, in collaboration with College staff, has tactfully challenged the assumptions of how a new campus in a remote location might reflect both community heritage as well as the many aspirations of its students. The project carefully approaches questions of how an architecture might synthesize both history and progress.
Capturing the Natural Context
Formally, the project geometry aligns with views in all directions, capitalizing on the context. Surrounding terrain and a neighboring creek setting ooze into the campus interior. Building apertures capture framed views of mountains and oak woodlands, acting as view-finders to the landscape. Overall, the natural context gives order and harmony to the design.

Framing Devices
The strong campus geometry is manifest in a series of concrete walls which slash through the site and through the building interior. These board-form concrete walls define program edges and zones which students inhabit. The thick concrete frames allow students to occupy the space of the walls where they have been punctured to reveal views. In another way, the concrete walls act like historical devices by expressing age through their mass and materiality. The building’s structural frame, roof and wall enclosures touch lightly on the concrete elements and on the ground to accentuate distinctions between rootedness and contemporary expression.

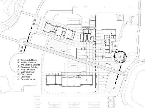
Program
In the same way that landscape views inform openings in the concrete walls, so the walls define the key programmatic relationships. The Student Common, with its framed views of surrounding hills, offers a serene environment for students to study between classes. The Community Room carries the axis of the Mt. Konocti, an ancient volcano and geographic centerpiece of the region, into the interior with a panoramic framed view. An operable wall opens the Arts Studio to the neighboring creek, again connecting student activity to the outdoors. The inside-out definition of space permeates the project.

Materiality
A palette of natural materials; concrete, wood, steel, and glass; lend a certain purity to the project. This minimal material expression helps provide spatial clarity, offers simple surfaces for daylight reflection, and wraps the question of the historical context into the tactile qualities of the interior.

Upcoming Events

  • Design Smarter: Leveraging GIS, BIM, and Open Data for Better Site Selection & Collaboration

    Live Webinar

    Register for Free
  • Slate Reimagined: The Surprising Advantages of Slate Rainscreen Cladding

    Webinar

    Register Now
  • The State of Residential Design Today: Innovations and Insights from RADA-Winning Architects

    Webinar

    Register for Free
All Events