McKeough House

Project Details

Project Name
McKeough House
Project Types
Custom
Project Scope
New Construction
Shared By
Rafi
Project Status
Built
Style
Traditional
Size
1,990 ft²

Project Description

2004 RADA
Custom / 3,500 Square Feet Or Less / Merit

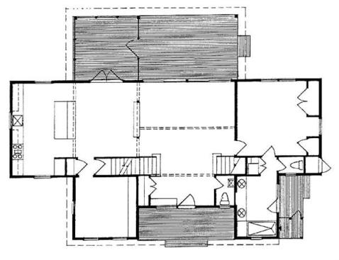
This Block Island retreat keeps the island’s architectural tradition of spare buildings intended to withstand harsh conditions. Architect Jim Estes started with two distinctly indigenous forms—sharply peaked dormers and a low-sloping porch—and designed basic building blocks that could be moved around like Monopoly pieces until he hit upon a winning combination. “We wanted the porch to become more than a tacked-on feature, and we hinged living spaces around that idea,” says Estes.

The jury applauded the home’s modest scale and see-through middle created by the continuous porch that encompasses entry and living areas before capitulating as a covered terrace along the rear waterfront elevation. Painted exposed rafters support the gently sloped ceiling to maintain a porch feel inside as well as out. Carefully aligned, oversized windows in a footprint only one room deep add to the home’s transparency, while an asymmetrical pulling apart of the dormered volumes helps diminish the apparent size of an already small house.

Upcoming Events

  • Design Smarter: Leveraging GIS, BIM, and Open Data for Better Site Selection & Collaboration

    Live Webinar

    Register for Free
  • Slate Reimagined: The Surprising Advantages of Slate Rainscreen Cladding

    Webinar

    Register Now
  • The State of Residential Design Today: Innovations and Insights from RADA-Winning Architects

    Webinar

    Register for Free
All Events