MCCA Residence

Project Details

Project Name
MCCA Residence
Location
ArlingtonVA
Project Types
Single Family
Project Status
Built
Year Completed
2015
Size
2,980 ft²

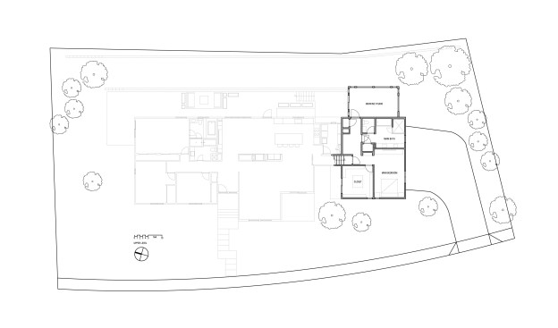
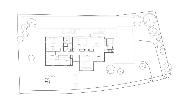
Project Description

A Metro DC couple looked to update their mid-80s “contemporary” split level. The existing home was comprised of a collection of generic rooms adjacent to lofty two-story spaces which were typical of the era. Also typical of the era were the generally uninspired use of materials, and detailing that was both lazy and at odds with the “contemporary” image of the house. Conversations with the couple led to the establishment of a desire to manifest a feeling of calm and clarity throughout their home, while maintaining a comfortable livability. Thorough renovations to the main Living and Public areas, the Kitchen, and the Main Bedroom Suite were performed. A palette of simple materials and finishes, along with understated detailing were utilized to create an over-arching aesthetic that was simple and clean while remaining warm.

Upcoming Events

  • Slate Reimagined: The Surprising Advantages of Slate Rainscreen Cladding

    Webinar

    Register Now
  • The State of Residential Design Today: Innovations and Insights from RADA-Winning Architects

    Webinar

    Register for Free
  • Specifying Smarter with Copper-Clad Aluminum (CCA) Metal-Clad Cable

    Webinar

    Register for Free
All Events