MaxCafe’ Dining Room Kitchen Renovation

Project Details

Project Name
MaxCafe’ Dining Room Kitchen Renovation
Location
1370 Piccard DriveRockvilleMD20850
Project Scope
Interiors
Shared By
UGC User
Project Status
Built
Year Completed
2020
Style
Modern
Size
13,320 ft²
Team
Architect: Douglas Frederick
Architect: Ann Cederna
Construction Documents: Lou Boza
Construction Documents: Matthew Geiss
Contractor: Rimy Albarado
MEP Engineer: Adam Kasprzyk
Photographer: Greg Powers
Room or Space
Other

Project Description

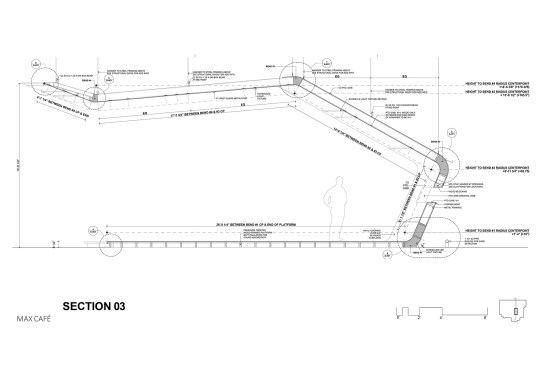
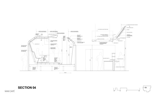
A connecting point for a leading video game company, MaxCafé provides a vital hub to a corporate headquarters serving 700 employees, while offering a wide variety of culinary experiences with menus prepared by world-class chefs. The video game industry is driven by creative genius at many levels, whether in 3D modeling, animation, design, storytelling, and programming, or through executive leadership, sales and marketing, in a challenging business and evolving market. Within this unique coming together of talent and technology, MaxCafé provides a daily forum and hub to energize the many teams and talents that draw from a three-building campus. Products of this video game company span a timeless range based on mythologies, legends, quests, and adventures. Games include settings of the past, the future, or alternate realities. In design and aesthetic, MaxCafé looks ahead to new ideas and visions, and provides a canvas to informally collect and exchange ideas for a broad set of futures. MaxCafé provides a variety of options for everything from a casual lunch to formal business meetings. The large canopy defines space and edge for general seating and tables of four. The Wall of Fame travels next to and through this canopy with a framed collection of best-selling games and AAA franchises. For the short stay, stand-up tables of two and four flank the cappuccino and smoothie bar. A separate booth area behind the grill and salad bar provides a more sheltered and intimate setting, across from a gentle curved wall. Dining/Conference rooms provide a reserved ambience to support private meetings. Multi-purpose monitors have always-on functionality to connect with conference rooms and teams around the globe. To allow privacy or confidentiality, the glass elevations in the CaféBits and CaféBytes conference rooms incorporate smart glass that transitions to opaque when called for (through switches applying electro-chromatic technology). The new dining room quadruples the footprint of the earlier dining room, already previously in a 3rd generation. Menus are served through a U-shaped configuration of counters. Six separately provisioned food serving areas include a salad bar, grill with wood-fired pizza oven, hot foods, wraps & sandwiches, smoothie bar, and cappuccino bar. Under an open 18’ high ceiling in a warehouse space where games were previously packaged and shipped, the MaxCafé is open and airy. Ceiling planes complement vertical planes or echo floor designs. HVAC systems and ducts integrate open or linear diffusers with LED lighting. Control system regulates all displays including in-house media, live games, television, or connecting studio meetings around the world, as well as menus and ordering. An integrated kiosk, online, and mobile ordering system connects a wide array of menu and behind-the-counter displays. Glowing edges and LED lighting throughout illuminate art and milestone images of company products spanning decades. All lighting throughout is adjustable via dimmable LED’s including overhead lighting, table lighting, or edge glows and accents. Lighting controls coordinate LED presets for functions ranging from breakfast, lunch, and dinner to Happy Hours & annual corporate meetings.

Upcoming Events

  • Design Smarter: Leveraging GIS, BIM, and Open Data for Better Site Selection & Collaboration

    Live Webinar

    Register for Free
  • Slate Reimagined: The Surprising Advantages of Slate Rainscreen Cladding

    Webinar

    Register Now
  • The State of Residential Design Today: Innovations and Insights from RADA-Winning Architects

    Webinar

    Register for Free
All Events