Markhouse

Project Details

Project Name
Markhouse
Location
KharkivUkraine
Project Types
Single Family
Project Scope
New Construction
Shared By
Symone
Project Status
Built
Year Completed
2016
Size
3,767 ft²
Team

Project Description

FROM THE ARCHITECTS:

Markhouse is located in the area which has recently become home for a peculiar sort of micro-community made of people united by friendly or family relationships. What is more, they have organized a number of places for common use here, such as a lounge-club, a parking lot and paths between the plots.

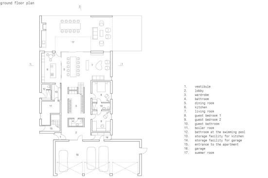
The house, in fact, consists of two independent houses with a garage shared by several families. The major challenge was to ensure the western exposure of the house to the garden in terms of hot summer weather. There was also a need to find a compromise between intimacy and collectiveness.

All the daytime functions are united within one single volume of the ground floor with a common empty space created by the courtyard and the strip of glazing under the levitating volume of the upper floor with bedrooms. This helped to integrate the house into the garden space, while protecting the inner premises from western sunrays. The heart of the house is a transparent room for work and hobbies, which offers a view over the whole estate, as if from a captain’s bridge.

Upcoming Events

  • Design Smarter: Leveraging GIS, BIM, and Open Data for Better Site Selection & Collaboration

    Live Webinar

    Register for Free
  • Slate Reimagined: The Surprising Advantages of Slate Rainscreen Cladding

    Webinar

    Register Now
  • The State of Residential Design Today: Innovations and Insights from RADA-Winning Architects

    Webinar

    Register for Free
All Events