Marin Theater

Project Details

Project Name
Marin Theater
Location
101 CaledoniaSausalitoCA94965
Architect
Ro Rockett Design
Shared By
Ro Rockett Design
Project Status
On the Boards/In Progress
Style
Modern
Size
15,000 ft²
Team
Principal: Zac Rockett
Principal: Jason Ro
Project Architect: David Kornmeyer

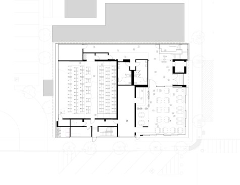
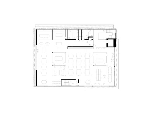
Project Description

Re-imagining the historic language of Sausalito’s dry docks and timber scaffolds as a diaphanous building skin, the Marin Theater inserts itself into an aging building shell to become a vibrant, new community anchor.

Upcoming Events

  • Design Smarter: Leveraging GIS, BIM, and Open Data for Better Site Selection & Collaboration

    Live Webinar

    Register for Free
  • Slate Reimagined: The Surprising Advantages of Slate Rainscreen Cladding

    Webinar

    Register Now
  • The State of Residential Design Today: Innovations and Insights from RADA-Winning Architects

    Webinar

    Register for Free
All Events