Marin Health & Wellness Campus

Project Details

Project Name
Marin Health & Wellness Campus
Project Types
Shared By
Xululabs
Project Status
Built
Size
252,648 ft²

Project Description

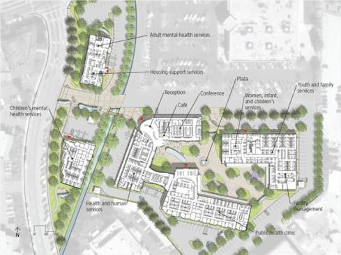
George Lucas’ Industrial Light & Magic (ILM) has provided special effects for some of the major adventure movies of our time, including Star Wars and E.T. But when the company left its long-term lease on a collection of three warehouselike offices and model shops in San Rafael, Calif., it set the stage for perhaps an even more impactful production: Those nondescript buildings were bought by the county and turned into the Marin Health & Wellness Campus, a collection of public health facilities for the wealthy area’s low-income residents.

Owned by the county of Marin, the recently completed, $28 million project unifies public health facilities—including mental and physical health clinics, a conference center, and youth and family services—that previously had been scattered around the city.

In order to break down the mass of the ILM buildings, while at the same time creating a sense of unity, San Francisco–based RMW Architecture & Interiors created a campus of five buildings arranged on 5.8 acres of gardens and paved plazas. Curved trellises connect the buildings and help take the edge off of what was previously a boxy composition of spaces.

The architects also took the edge off the original buildings themselves, literally. “There was nothing precious about them,” says RMW principal Bart McClelland. “We didn’t feel bashful about lopping off the end of a building.” To make the environment more approachable and habitable, they added massive windows to the once-closed façades and skylights to the once-solid roofs. To unite the buildings with a common identity, the architects replaced the existing roofs with green prepatinated copper sheets and projecting sunshades. To give visual prominence to the central reception and conference facility, they created a two-story glass atrium that rises above the mostly single-story complex. The goal was to make these public spaces light and airy, McClelland says, and the push for still-pending LEED Gold certification—with its premium on daylighting—helped.

The campus itself feels more like a little community than a health center. Farmers markets are held in the plaza, and movies are projected on the walls in the summer—something the former tenants know a little something about. Maybe, just maybe, an Indiana Jones marathon is in the works.

Upcoming Events

  • Design Smarter: Leveraging GIS, BIM, and Open Data for Better Site Selection & Collaboration

    Live Webinar

    Register for Free
  • Slate Reimagined: The Surprising Advantages of Slate Rainscreen Cladding

    Webinar

    Register Now
  • The State of Residential Design Today: Innovations and Insights from RADA-Winning Architects

    Webinar

    Register for Free
All Events