Marigny Residence

Project Details

Project Name
Marigny Residence
Location
New OrleansLA
Architect
studioWTA
Project Types
Single Family
Project Status
Built
Year Completed
2016
Size
4,800 ft²

Project Description

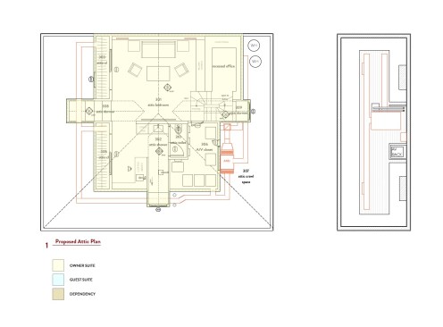
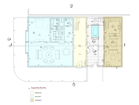
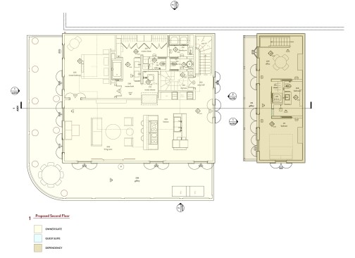
The Marigny Residence was a renovation with no detail left unconsidered. Originally constructed as a one story brick corner store with a 2 story detached kitchen separated by a narrow courtyard circa 1850, it was later converted to a residence in the 1880’s. A second story was added in wood framing and a traditional iron gallery over the corner sidewalk. By 2012 multiple renovations and re-workings left much of the existing brick, wood, and ironwork neglected, while clunky renovations had compromised the simplicity of the original interiors. The clients requested a division of the house into three distinct living spaces: the downstairs as a guest quarters, the detached “dependency” as another guest suite, and the upstairs as an Owner’s suite. Since this left little space for the Owner’s suite, the attic was integrated as living space through the addition of a compact winding stair and three roof top dormers for natural light. The existing architectural features informed the development of custom millwork, finishes, and fixtures befitting each suite. Home automation all controlled from the Owner’s suite allow control of the entire home. The highly complex renovation’s success balanced carefully researched restoration efforts with the addition of modern amenities and interiors.

Upcoming Events

  • Design Smarter: Leveraging GIS, BIM, and Open Data for Better Site Selection & Collaboration

    Live Webinar

    Register for Free
  • Slate Reimagined: The Surprising Advantages of Slate Rainscreen Cladding

    Webinar

    Register Now
  • The State of Residential Design Today: Innovations and Insights from RADA-Winning Architects

    Webinar

    Register for Free
All Events