Marfa Suite

Project Details

Project Name
Marfa Suite
Location
MarfaTexas
Architect
DUST Architects
Project Types
Custom Home
Project Scope
New Construction
Shared By
Madeleine D’Angelo
Project Status
Built
Year Completed
2021
Size
1,296 ft²

Project Description

This project was selected as a Merit winner in the 2022 Residential Architect Design Awards, Custom Home / 3,000 Square Feet or Less category.

The intense crispness of the rammed-earth exterior is situated perfectly in the Texan desert.” — juror Melissa Daniels, Assoc. AIA

Calling the Marfa Suite house “haunted” is in no sense a put-down. The project from Tucson, Ariz.–based DUST Architects seems to be inhabited by a few very impressive, very attractive ghosts: the landscape of the Chihuahuan Desert, the eerie emptiness of which gives the town of Marfa, Texas, its peculiar allure; the work of Donald Judd, the famous Minimalist artist who first made Marfa an art-world hot spot; and the cultural memory of the American West, with a romance that DUST has successfully translated into a uniquely poetic yet practical domestic design.

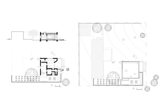
With an exterior made out of compressed-earth blocks, the house presents as a rough-hewn, rustic form—an impression that carries through the modestly scaled interior with its exposed concrete floors. The site plan, including intimate garden enclosures planted with indigenous flora, is carefully calibrated to make the house feel like a part of the vast, unpeopled ecosystem, and its simple unobtrusive silhouette won’t spoil the view from the neighbor’s ranch. Yet Marfa Suite is also a very comfortable—and decidedly luxurious—machine for contemporary living, equipped with operable skylights, radiant-heat floors, and custom wood furniture and closets.

Lilting and elegiac, Marfa Suite is a house of echoes, full of old familiar voices singing about space, place, and the past.

PROJECT CREDITS
Project: Marfa Suite, Marfa, Texas
Architects: DUST Architects. Cade M. Hayes, AIA; Jesus Edmundo Robles, Jr., Assoc. AIA
Structural Engineer: Dan Ray
General Contractor: E&C Construction
Lighting Design: DUST Architects
Compressed Earth Block: Beyond Adobe
Millwork: Architectural Surfaces
Finish Carpentry: Jimmy Magliozzi and Laszlo Thorsen
Surveyor: Walker Land Surveying

MATERIALS AND SOURCES
Bathroom Fixtures: Vola
Cabinets: Architectural Surfaces
Lighting: Nora Lighting
Concrete, Masonry, Framing, Finishes: E&C Construction
Plumbing: T Plumbing Co.
Shades: Mecho
Skylight: Velux
Tile: Ann Sacks
Toilet: Toto
Walls: Reglet Fry
Windows and Doors: Arcadia Custom

Upcoming Events

  • Build-to-Rent Conference

    JW Marriott Phoenix Desert Ridge

    Register Now
  • Reimagining Sense of Place: Materiality, Spatial Form, and Connections to Nature

    Webinar

    Register for Free
  • Homes that Last: How Architects Are Designing a Resilient Future

    Webinar

    Register Now
All Events