Mall of Berlin

Project Details

Project Name
Mall of Berlin
Location
Leipziger Platz 12/13, Leipziger Straße 125, 129-135,Voßstraße 24-30, 34, 35, Wilhelmstraße 79-80,BerlinGermany10117
Project Scope
New Construction
Shared By
Esenija Bannan
Project Status
Built
Year Completed
2014

Project Description

Leipziger Platz ,
New complex with a hotel, apartments and underground car park
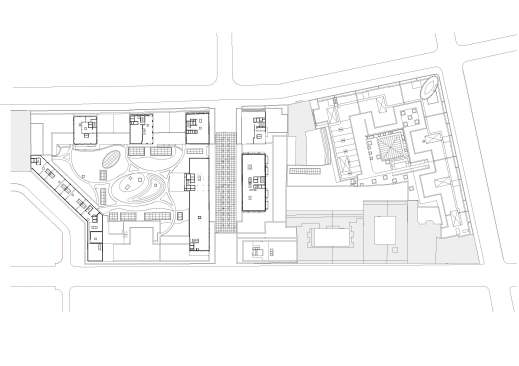
Situated on an octagonal square in the heart of Berlin´s city center, Mall of Berlin on Leipziger Platz, marks the erstwhile location of the famous Wertheim department store.
Mall of Berlin is an architectural connection between Potsdamer Platz and Friedrichstraße and was the subject of a competition from which nps tchoban voss emerged as victor in 2002.
The masterplan references the original block perimeter development and lends the plot a single façade, a new network of thoroughfares and concise orientation for the covered piazza – invokes the former Wertheim atrium in light-filled – in the main axis opposite the venerable Bundesrat (Federal Council).
In terms of urban planning and commerce, the shopping centre creates the necessary structural connection between the shopping and entertainment quarter west of Potsdamer Platz and the high-end boutiques along Friedrichstraße. The use of the piazza’s western gatehouse as a hotel and a proportional increase in living quarters are stand-out features of the building complex, which brings both a vibrant atmosphere and a mutual enrichment of functions. The facades on Leipziger Straße, Wilhelmstraße and Voßstraße, as well as the piazza, borrow elements from the original Wertheim building and reinterpret them in a contemporary manner.

Upcoming Events

  • Design Smarter: Leveraging GIS, BIM, and Open Data for Better Site Selection & Collaboration

    Live Webinar

    Register for Free
  • Slate Reimagined: The Surprising Advantages of Slate Rainscreen Cladding

    Webinar

    Register Now
  • The State of Residential Design Today: Innovations and Insights from RADA-Winning Architects

    Webinar

    Register for Free
All Events