Maison 20000 Ngiri-Ngiri

Project Details

Project Name
Maison 20000 Ngiri-Ngiri
Architect
BasaboseStudio
Project Types
Single Family
Shared By
MrBasabose
Project Status
On the Boards/In Progress
Style
Modern
Team
Head of Design: Nicolas-Patience Basabose

Project Description

Housing demand in DRC outweighs the supply, and the backlog is estimated at 3 945 555 million houses countrywide, that is 263 039 houses to be built per year. Kinshasa alone has a housing deficit estimated at 54.4 % of the overall national deficit, i.e. an average of 143 092 houses to be built per year. As a result of improved socio-economic conditions, population growth, urbanisation and internal migration housing, demand will keep increasing in the city.

The majority of housing in the DRC is developed by household’s themselves. The planned districts represent 22.9 %, while self-built districts represent 77.1 %. Most of private housing developments especially low-cost housing is characterised by non-compliance to local development master plans and municipal building standards.

Maison 20000 Ngiri-Ngiri is one of our many prototypes.

Ngiri-Ngiri is a 3.4km2 municipality (commune) in the Funa district of Kinshasa, the capital city of the Democratic Republic of the Congo with an estimated population of 175 000; that’s density of 51000/km2. It is situated in the south of Kinshasa. Ngiri-Ngiri is one of the new post-colonial settlements, located at the foot of the Kalamu and Kasa-Vubu hills to the south of the city-province.

Challenged by a friend to build a “liveable” house for his small family with his savings amounting to $20000, the project came with limits that we could not expand.

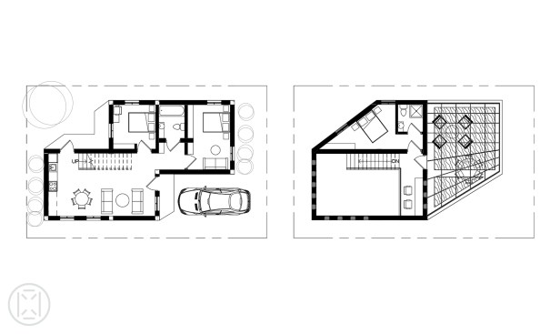
The plot is just 16mx10m (160m2) with an obligatory 1.5m boundary, the overall footprint of the house was reduced to 66m2. With a program of 1 parking, 3 bedrooms, 2 bathrooms, lounge, dining, kitchen and working space; the house was designed in a compact concrete structure with spaces created in-between. Totaling 122m2 of living space.

The resulting mass not only satisfies all the required spaces, we offered an elevated 34m2 garden overlooking the street. The leafy canopy supported by a light metallic mesh offers an oasis of coolness and greenery to enjoy the outdoors under the tropics and a visual balance of bringing nature right inside a rough concrete exterior.

The house offers “liveable” spaces within budget while asserting the need to obey municipal building standards in a city wildly growing with no regard to city planning obligations often ignored by self-built houses.

Once completed, the documentation for House 20 000 Ngiri-Ngiri will be made freely available for download for anyone interested in building properly, as an attempt to encourage and educate all stakeholders on the possibilities available to all, in a city where housing is probably the greatest challenge and demand.

This is one of our prototypes, as an active solution to the serious problem.

Upcoming Events

  • Design Smarter: Leveraging GIS, BIM, and Open Data for Better Site Selection & Collaboration

    Live Webinar

    Register for Free
  • Slate Reimagined: The Surprising Advantages of Slate Rainscreen Cladding

    Webinar

    Register Now
  • The State of Residential Design Today: Innovations and Insights from RADA-Winning Architects

    Webinar

    Register for Free
All Events