Mahón

Project Details

Project Name
Mahón
Location
MahónSPAIN
Architect
NOMO studio
Project Types
Project Scope
New Construction
Shared By
NOMO studio
Project Status
Concept Proposal
Year Completed
2018
Style
Modern
Team

Project Description

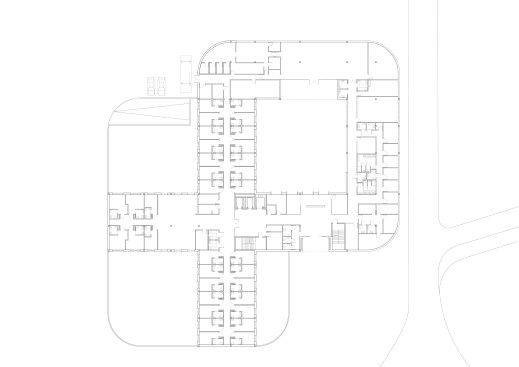
NOMO studio´s design for the Residence for people with special needs derives from the intention of creating a silent and calm island between the busy streets surrounding the project site. The spaces and circulation are designed to provide maximum accessibility and autonomy of the residents, as well as maximum optimisation of the services and tasks of the personnel. There is a clear division between the residential area, located in the cross – shaped volume, and the services hosted by the low volume. The cross typology allows centralized access and control of the modules with short, clear and easily supervised routes. The patios integrated in the design guarantee both privacy and pleasant recreational spaces for the users. The economical, durable and easily replaceable materials are carefully chosen in order to minimize the maintenance needs. The interiors are bright, designed in light tones and wooden elements. This, combined with the abundancy of green spaces, creates cozy, intimate and friendly atmosphere.

Upcoming Events

  • Design Smarter: Leveraging GIS, BIM, and Open Data for Better Site Selection & Collaboration

    Live Webinar

    Register for Free
  • Slate Reimagined: The Surprising Advantages of Slate Rainscreen Cladding

    Webinar

    Register Now
  • The State of Residential Design Today: Innovations and Insights from RADA-Winning Architects

    Webinar

    Register for Free
All Events