Madeline

Project Details

Project Name
Madeline
Location
HoustonTX
Architect
Gracepoint Homes
Project Types
Shared By
dmadsen
Project Status
Built

Project Description

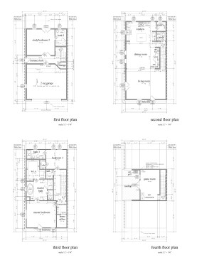
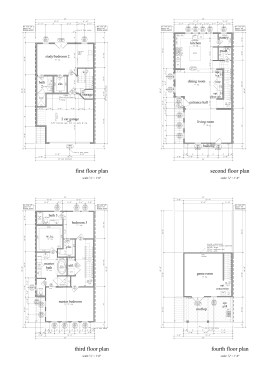
We had the opportunity to purchase one acre of land “inside the Loop,” in a highly prized area central to Houston employment and entertainment corridors. Much of the residential in this area is of a similar type – high-density units that lack elevation, numerous windows and other defining characteristics. We wanted to introduce sophisticated architecture, inspired by the charm of New Orleans’ Garden District, to the area. The most impactful move was to add a second entrance to the home designs, an exterior stairway that leads to the second-floor common area. Along with the side stairway, our home designs have windows on three walls, distinguishing them from typical townhome designs in the area. We also increased the ceiling height to 11 feet on the second floor, rather than utlizing the typical nine- and 10-foot heights. Although this requires the use of more expensive steel framing, it creates a valued sense of space important to a high-density product. Balconies and wrought-iron railings echo Garden District style, and rooftop terraces offer views of downtown Houston, giving homeowners a welcoming urban setting for parties and other gatherings. With only one acre, space was a definite constraint in the land plan, but we have designed the parcel for 22 properties, with substantially more space between homes than other developments. We feel buyers will respond to the extra consideration we have given this property as we strived to create a distinctive urban environment in one of Houston’s most popular locales.

Upcoming Events

  • Design Smarter: Leveraging GIS, BIM, and Open Data for Better Site Selection & Collaboration

    Live Webinar

    Register for Free
  • Slate Reimagined: The Surprising Advantages of Slate Rainscreen Cladding

    Webinar

    Register Now
  • The State of Residential Design Today: Innovations and Insights from RADA-Winning Architects

    Webinar

    Register for Free
All Events