Lyon Park House

Project Details

Project Name
Lyon Park House
Location
ArlingtonVA
Project Types
Project Status
Built
Year Completed
2015
Size
2,730 ft²

Project Description

2017 Remodeling Design Awards
Whole-house Remodeling under $500,000: Grand

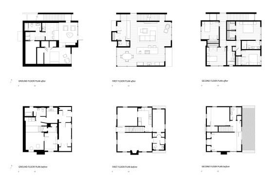
A young family of four had lived in their Colonial-style home in Arlington, Va., adjacent to Washington, D.C., for seven years and were ready for a change. They wanted to open up its space as well as expand to better fit their lifestyle. Excluding the basement, the house comprised less than 1,400 feet and had just two bedrooms and one full bathroom.

“[The] existing house was in bad shape and needed an upgrade,” the architect, Robert M. Gurney, says. For cost reasons, the owners sought to keep as much of the old house as possible, something that Gurney appreciated.

The plan involved building three small additions that added 660 square feet spread over three floors, all on a 250-square-foot building footprint. Existing spaces were completely reconfigured. The second-floor exterior walls and roof were removed and rebuilt to provide high ceilings and light-filled spaces. On the main level, floor-to-ceiling windows allowed expansive views of the backyard, while large windows on the street side provided a connection to the neighborhood. A stairwell was moved to one side of the first floor, freeing up the floor plan and making for a wide-open dining space.

The decision to replace the second-floor walls and roof was made in an effort to have the house feel bigger. “In buildings that have small footage, the space doesn’t feel that big,” Gurney says. “We wanted it to feel very large.”

The huge windows in the front and back are located where they can take advantage of the best views. The placement of each window was carefully considered before installation. “Even the window in the corner of the dining space stops where the property on the other side starts,” Gurney says. The windows represent perhaps the biggest change for the house, as it went from being plain and symmetrical to striking and asymmetrical.

The windows are not the only source of light, however. Next to the stairwell, Gurney saw an opportunity to harvest the light coming in without exposing the homeowners to the view of their next-door neighbors 10 feet away. Here, a translucent panel was installed, barring visibility but allowing light to pass.

The completed exterior marks a drastic change from the original, as wood siding paired with gray stucco and charcoal fiber cement provides a quiet warmth that “blends into the wooden environment,” according to Gurney. He says the dark cement panels draw people’s eyes to the lightest element, which further blends the wood siding with the surrounding environment.

“I like [that] we barely changed the footprint but drastically changed the house,” says Gurney. He says all of the clients’ requests’ were met, and that they were able to go from two bedrooms to four.

The judges were happy, too. “It’s a complete transformation and pretty cohesively well done and detailed,” one said. “They got a lot for half a million, I’d say.”

All this was accomplished despite tricky building codes –Arlington limited the amount of space they could add. Additionally, the homeowners requested the builders to keep the backyard unchanged. This forced them to renovate in an extremely small area. “We had to shoehorn our way in–there was only 8 to 10 feet to the property line,” Gurney says.

FROM THE ARCHITECT:

Lyon Park, in Arlington, Virginia is an “urban village” near Washington, DC. Most of the houses in this established neighborhood were constructed in the 1920’s and 1930’s. The houses vary in style, ranging from small single-story bungalows to larger wood and brick colonial revivalist houses. Streets are tree lined and the topography is gently rolling. After living in their house for about seven years, a young family of four hoped to transform their colonial house to better fit their lifestyle. A series of small but cozy rooms failed to connect with each other and to the deep, sloping landscaped backyard. Excluding the basement, the existing house comprised less than fourteen hundred square feet, with two bedrooms and only one full bathroom. Ideally, the transformation would retain the “sense of home” while providing spaces open to each other, additional bedrooms and a better connection to the landscaped site. A building that avoided stylistic mimicry with modern light filled spaces was desired. Sustainable construction techniques and the use of environmentally sensitive materials were expected. The budget for this project was moderate. The result is a modest, restrained and compact modern renovation project that respects the scale and rhythm of the street. The project combines three small additions, totaling two hundred fifty square feet with a complete reconfiguration of the existing spaces. The existing second floor exterior walls and roof were removed and rebuilt to provide spaces on the second floor with high ceilings and light filled spaces. On the main level, floor to ceiling windows allow expansive views to the backyard, while large windows on the street side insure a connection to the neighborhood. The previously dark and compartmentalized house is now open and flooded with light. The FSC-certified wood siding, combined with gray stucco and charcoal fiber cement panels provide a quiet, warm exterior that recedes into the tree lined streetscape. The compact massing with simple fenestration is organized to respect the scale of adjacent houses. A rain screen system is employed to provide a ventilated envelope. Windows with high level efficiency ratings provide transparency and light transmission without compromising the performance of the envelope. Ultimately this is a modest project with a moderate budget. Although this project is very small on many levels, the impact on the lives of this family of four is substantial.

Upcoming Events

  • Design Smarter: Leveraging GIS, BIM, and Open Data for Better Site Selection & Collaboration

    Live Webinar

    Register for Free
  • Slate Reimagined: The Surprising Advantages of Slate Rainscreen Cladding

    Webinar

    Register Now
  • The State of Residential Design Today: Innovations and Insights from RADA-Winning Architects

    Webinar

    Register for Free
All Events