Lyme House

Project Details

Project Name
Lyme House
Location
LymeCT
Project Types
Single Family
Project Status
Built
Year Completed
2015
Size
5,700 ft²

Project Description

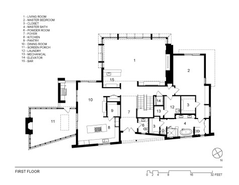
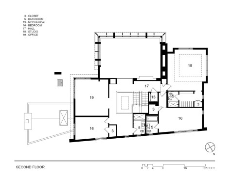
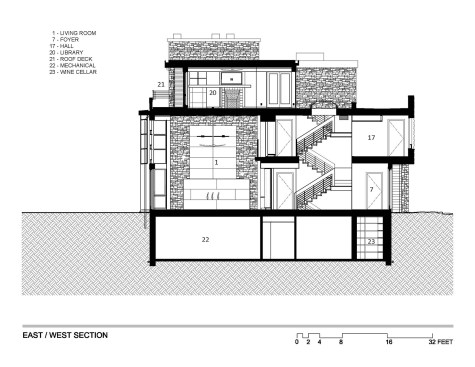
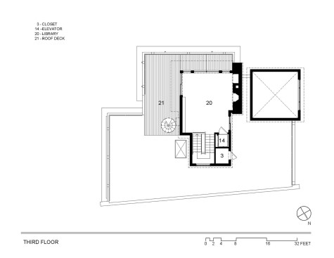
Located at the edge of a cliff on the escarpment of the Connecticut River, the site was one of the last undeveloped parcels in the area. The challenge was to preserve the character of the site with its severe slopes and massive rock outcroppings while maximizing the view from all major rooms. This was done by carefully integrating the house into the landscape with minimum intervention. The house combines active and passive strategies to come as close as possible to net zero. It has been sited to take maximum advantage of its solar orientation, with its main facades oriented to the south and west. To take advantage of the view, large windows were placed on these facades. The amount of glass had to be dealt with as it endangered the energy efficiency of the house. To counteract that, sun shading fins (Brise-soleil) were added to admit sun in winter and keep it out in summer. These fins became the main aesthetic feature of the house. All the exterior walls and roofs of the house were heavily insulated using various types of insulation to achieve the maximum affect. Exterior walls R = 35; roofs R = 50. All windows are triple glazed and all lighting is LED. The HERS rating is 22. Active strategies include the installation of a 10KW photovoltaic solar and a geothermal system to provide the heating and air-conditioning. The house is built of all natural materials, predominantly cedar siding and stone. All the field-stone used on the east façade and in interior fireplaces came from dismantling old stone walls that existed on the property. All large boulders that were used for retaining walls, site work and landscaping were either on site or retrieved from debris that came from blasting the foundation. In order to maximize the impact of the view, the house was designed vertically. As the clients are an empty nester couple, the house was designed with all major rooms on the ground floor so that, if necessary, one could live on the ground floor without having to climb stairs. Just in case, an elevator was added to link all levels. A library/sun room was placed on the third floor and opens onto an outdoor roof terrace where the view is most spectacular. The two-story living room is designed to maximize the flow of indoor/outdoor space. To strengthen this connection, on-site fieldstone was brought into the living room surrounding the massive gas fireplace. The rough texture of the stone is contrasted with a smooth limestone fireplace surround with upholstered panels above, creating a juxtaposition of finishes and textures.

Upcoming Events

  • Slate Reimagined: The Surprising Advantages of Slate Rainscreen Cladding

    Webinar

    Register Now
  • The State of Residential Design Today: Innovations and Insights from RADA-Winning Architects

    Webinar

    Register for Free
  • Specifying Smarter with Copper-Clad Aluminum (CCA) Metal-Clad Cable

    Webinar

    Register for Free
All Events