Lycée Français de Chicago

Project Details

Project Name
Lycée Français de Chicago
Location
1929 West Wilson AvenueChicagoIL
Architect
STL Architects
Project Types
Education
Project Scope
New Construction
Shared By
Miabelle Salzano
Project Status
Built
Year Completed
2015
Size
86,000 ft²
Team
partner in charge: Jose Luis de la Fuente
partner in charge: Luis Collado
technical director: Tracy Salvia
project director: Janelle Moody
project designer: Jose Luis Perez-Griffo Viqueira, AIA

Project Description

FROM THE ARCHITECTS:

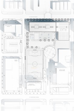
Located in close proximity to the heart of Lincoln Square in Chicago, the new 85,000 SF Lycée Français de Chicago has been conceived as a unique educational campus with light-filled spaces intended to encourage educational discovery and shared environments aimed to celebrate the Lycée’s international community.

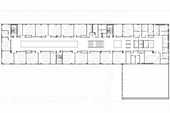
The project’s key concept revolves around the creation of a shared learning environment in which to celebrate the vibrant Lycée community. Intended to engage faculty and students across all academic grade levels, this Social Learning Fabric space manifests itself through a majestic four-story open atrium. The spaces held within the atrium foster informal student and faculty interaction. In addition, the space provides a shared sense of social and global responsibility attributes which are both intrinsic to the Lycée’s curriculum and community.

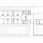
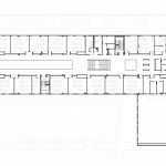
The Lycée is situated in one of Chicago’s most dynamic, artistic and culturally relevant neighborhoods, where the school aims to cultivate community partnerships. The campus has a private drive, and college-preparatory facilities equipped to serve up to 800 students with 41 classrooms, laboratories for art, science and music, a cafeteria, a gymnasium, a library, administrative offices, playgrounds, a soccer field, and ample green space for outdoor athletic activities.

The Lycée Français de Chicago was the first development project that crossed the desk of the then newly elected 47th Ward Aldernan Ameya Pawar in 2011. The campus has replaced the former Ravenswood Hospital that had been vacant for over a decade. The new LEED silver project has been a welcome addition to the neighborhood, bringing renewed energy to an already thriving area.

Due to the development’s aggressive budgetary objectives, the project has been conceived with extreme efficiencies in mind, making it one of the most cost effective educational projects built in Chicago in the last few years. The final cost of construction, inclusive of all building and site improvements, was $21,500,000.

It is within the framework of these ambitious budgetary goals that the new Lycée Français de Chicago represents a great example of how a deliberately restrained design approach can produce architecture of outstanding quality, and that an economy of expressive means can generate magnificent architecture rooted in simplicity and in the essential qualities inherent to any great building: light and air, proportion and color, circulation and arrangement.

The new campus opened in the fall of 2015, coinciding with the Lycée Français’ 20th anniversary as Chicago’s premiere international educational community.

Upcoming Events

  • Design Smarter: Leveraging GIS, BIM, and Open Data for Better Site Selection & Collaboration

    Live Webinar

    Register for Free
  • Slate Reimagined: The Surprising Advantages of Slate Rainscreen Cladding

    Webinar

    Register Now
  • The State of Residential Design Today: Innovations and Insights from RADA-Winning Architects

    Webinar

    Register for Free
All Events