Project Description
The Lux Art Institute, a nonprofit dedicated to environmental art, is creating a new home for itself in Encinitas, Calif., at the edge of the San Elijo Lagoon Ecological Reserve—a rare untouched coastal wetland in San Diego County. This sensitive landscape provided both the appeal and the challenge of building on the steep four-acre site.
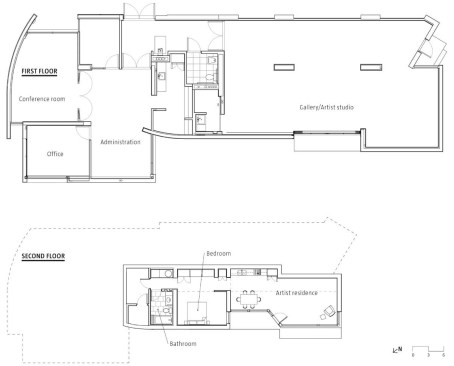
Santa Monica–based Renzo Zecchetto Architects designed the institute’s new building to nestle into the hillside with minimal impact. The building—which houses a visiting artist residence and studio—is the first step in a larger project. A second phase will include a museum and administrative building. The entire project is slated for LEED certification.
Architectural gestures such as the four periscopelike concrete light scoops and a cantilevered roof that folds over the entrance are designed to maximize energy efficiency. The north-facing scoops bring daylight into the studio, while the cantilevered roof protects offices from southern and western sun exposure and heat gain. A large barn door in the studio slides open to provide natural ventilation, reducing the need for mechanical systems. Photovoltaic panels will be added in phase two, further reducing the building’s energy demands.
Energy conservation drove Renzo Zecchetto’s material choices and led him to search for local manufacturers. “We design for green in the long run,” he says. “We assess the life span of the building, not the capital investment.” Zecchetto looks carefully at the energy consumption of the products that he specifies. “It is important to utilize materials in their natural state,” he explains. “Raw concrete, solid-state lighting, UV glass, and no paints, chemicals, or solvents.”
True to this philosophy, Zecchetto specified cast-in-place concrete and plaster walls with integral color. Other products integrate recycled materials: The teak panels on the building’s exterior are embedded with recycled plastic, and the concrete masonry unit (CMU) blocks in the basement are composed of aggregate salvaged from demolished roads.
“There are a lot of incredible materials nowadays: composites, countertop materials like CaesarStone, cement fiber boards,” says Zecchetto. Getting information from manufacturers is critical, but given the current eco trend, it can be tough to sort green from greenwash. A keen awareness of all the sustainable processes that go into construction, from the fuel needed for transportation to high-efficiency lightbulbs, will set the course of future green building. At the edge of the San Elijo Lagoon, these small moves add up to an environmentally responsible building in keeping with the Lux Art Institute’s mission.