Lower Mountjoy Teaching and Learning Centre

Project Details

Project Name
Lower Mountjoy Teaching and Learning Centre
Location
Lower Mountjoy Teaching and Learning CentreSouth RoadDurhamCounty DurhamUNITED KINGDOMDH13LS
Project Types
Shared By
eddshanks
Project Status
Built
Year Completed
2019
Style
Modern
Certifications & Designations
Other
Team
Project Partner: Andrew Kane
Project Architect: Hilary I’Anson
Architect: Ian Whittle
Architect: Archie Wang
Technologist: Iain Stephenson

Project Description

In 2017, a new University Strategy was launched to offer strategic direction for Durham University over a ten-year period. FaulknerBrowns were engaged to inform and support this strategy with the development of a new University Masterplan. Central to the new University Strategy and Masterplan was the provision of enhanced teaching and learning facilities to support an increase in student numbers, enable the adoption of new pedagogies, and to create facilities that could be shared by all students rather than be aligned to specific faculties or departments. The Lower Mountjoy Teaching and Learning Centre was the first strategic project to emerge from this plan.

Independent research into how spatial design can support the success of innovative pedagogies, informed the development of a teaching and learning ‘space model’, which became the basis for the building’s accommodation brief and subsequently the internal layout.

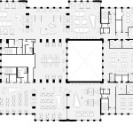
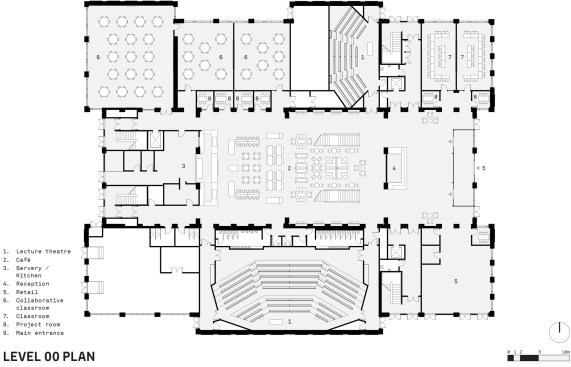
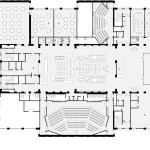
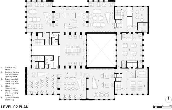
A top-lit central courtyard forms the social and circulation hub of the building giving access to the café, 250 and 500 seat lecture theatres, seminar spaces and project rooms. A diverse mix of teaching spaces surrounds the lecture theatres, supporting traditional seminars as well as more innovative pedagogies. The vaulted top floor of the centre provides an extensive ‘learning commons’ with a broad range of settings for focused, contemplative, active and collaborative learning.

The site is located adjacent to a conservation area and within view of a UNESCO World Heritage Site. To ensure the new centre integrates sensitively with its context, the overall building volume is broken down into an assemblage of smaller repeated elements to relate more closely to the fabric and grain of the historic city.

A three-storey module with a 15x18m footprint was established as the building block from which the centre was formed. Each module has two façade types: a ‘fenestrated’ façade generally on the long face, and a ‘gable’ façade to the short face. Each module is capped by an asymmetric pyramidal roof with a central rooflight. Twelve of these modules, rotated and handed, create the plan layout and building volume, with one of the central elements being ‘removed’ to create a focal internal courtyard.

The dynamic roof profile not only delivers interest in the external form, it also creates a series of dramatic top-lit ceiling coffers to the upper level learning commons. Full height windows provide views to the surrounding landscape and glimpses of the city’s iconic cathedral.

An elegant and durable palette of materials give character to the exterior. Handmade facing bricks, in a combination of buff and grey, form the predominant external material. The pyramidal roofs are finished in traditional standing seamed zinc sheet to contrast with the tones of the brickwork below and respond appropriately to the conservation setting.

An integrated technology and sustainability strategy was central to the university’s vision for the teaching and learning centre. The centre has therefore been designed to BREEAM ‘Excellent’ standard and to deliver EPC ‘A’ rated energy performance.

Since opening, the building has established itself as a hugely popular facility for teaching and learning, embraced by students and academics alike.

Upcoming Events

  • Design Smarter: Leveraging GIS, BIM, and Open Data for Better Site Selection & Collaboration

    Live Webinar

    Register for Free
  • Slate Reimagined: The Surprising Advantages of Slate Rainscreen Cladding

    Webinar

    Register Now
  • The State of Residential Design Today: Innovations and Insights from RADA-Winning Architects

    Webinar

    Register for Free
All Events