Lower Broadford Residence

Project Details

Project Name
Lower Broadford Residence
Project Types
Single Family
Project Scope
New Construction
Shared By
Chelsea Blahut
Project Status
Built
Year Completed
2013
Size
3,965 ft²

Project Description

PROVIDED BY AIA IDAHO:

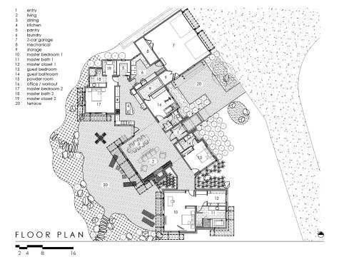
This 3 bedroom, 3.5 bathroom residence with 2-car garage is 3,965-square-feet situated on a 6.83 acre rural property. The home is the second phase after a previously constructed accessory dwelling unit. The building envelope was defined by a 100-year flood plain.

The owners requested a contemporary house with low maintenance exterior materials and abundant daylight and views. Their program called for a double master and centralized living space on one level. The floor plan diagram was derived from a parallel relationship between the structure and existing pond with two wings angling off axis. The main living space is the largest volume with 13-foot ceilings and 360 degree clerestory windows. A floor-to-ceiling stone veneered fireplace anchors the room. Ten-foot high windows and lift + slide doors, bring the exterior into the space, blurring the distinction of inside and outside. The fine line window mullions and ebony stain minimize frame interference. Black Italian porcelain plank flooring grounds the room while suspended walnut veneered panels balance the ceiling and floor planes. The expansive outdoor patio of grey linear concrete pavers are oriented and scaled the same as the interior tile. The kitchen cabinets are a natural maple veneered, with black quartz slab countertops and a stacked glass and marble mosaic tile backsplash. The master suites have 9-foot ceilings with 8-foot high windows and doors that open onto the patio. Corner windows were used whenever possible to expand the interior space and exterior views.

Upcoming Events

  • Design Smarter: Leveraging GIS, BIM, and Open Data for Better Site Selection & Collaboration

    Live Webinar

    Register for Free
  • Slate Reimagined: The Surprising Advantages of Slate Rainscreen Cladding

    Webinar

    Register Now
  • The State of Residential Design Today: Innovations and Insights from RADA-Winning Architects

    Webinar

    Register for Free
All Events