Lonna Sauna

Project Details

Project Name
Lonna Sauna
Location
HelsinkiFinland
Architect
OOPEAA
Project Types
Project Scope
New Construction
Shared By
Ayda Ayoubi
Project Status
Built
Year Completed
2017
Size
2,045 ft²
Team

Project Description

FROM THE ARCHITECTS:

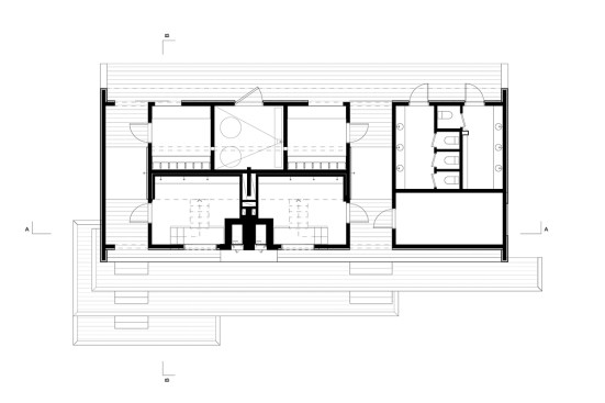
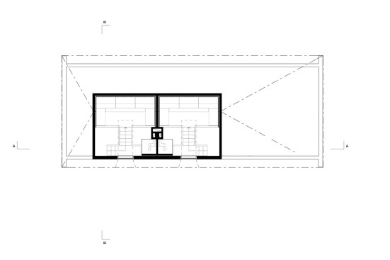
The Lonna Sauna is a new public sauna located on the small island of Lonna in the archipelago just in front of the city center of Helsinki. It is part of the historical continuum of the tradition of public saunas in Finland.

On the border between urban and nature, between the busy life of the city and the open landscapes on the sea, with views framing the silhouette of the city on one side and opening towards the see on the other, the Lonna Sauna sits in the context of a group of old historical structures built during the Russian rule in the 19th century.

The Lonna island used to be occupied by the military and has only very recently been opened to the public. It is located right next to the larger Suomenlinna island which is a world heritage site. The old buildings on the Lonna island are landmarked and the nature on the island is delicate and special. Offering people a way to relax and enjoy the nature and the sea, just a short boat trip away from the city, the Lonna Sauna is part of the unique environment of the island where the man-made meets the natural and enters into dialogue with it. With its wood-burning stove it offers a great bathing experience. It allows the bathers to enjoy the view to the sea while relaxing in the warmth of the sauna.

As the functions on the island change, so does the sauna culture in Finland. Public saunas were once lively places and numerous throughout the country, but today there is only a few of them left. However, in recent years, there has been a renewed interest in the tradition of public saunas and a number of new public sauna buildings have opened in various parts of the city in Helsinki. The unique natural features of the Lonna island create a special and authentic atmosphere adding a new aspect to the experience of an urban public sauna. It brings together the calming and peaceful experience of the sauna ritual and the social aspect of the public sauna as a gathering place for people. Located very close to the city center, the island is accessible only by boat. Water separates it from the boost of urban life, preserving its natural environment and making it the perfect location for tranquility, or a special place for a social gathering in the form of a lively party under the summer skies.

The compact 190 m2 building is built solely with natural materials with a sculptural pitched roof in zinc plate and a masterfully handcrafted wooden log structure, which is left visible and untreated. Furnished with wood-burning stoves it recreates the calm and almost sacred feeling of the traditional Finnish sauna, while placing it in a new, contemporary architectural frame. The skillful use of larch in the furnishings and the large windows opening on to the archipelago create strong contemporary interiors. The terrace is directly accessible from the sauna rooms and from the outdoor shower space bridging the sauna with the seashore.

The Lonna Sauna was officially opened to the public in summer 2017. The building is commissioned by the Governing Body of Suomenlinna.

Upcoming Events

  • Design Smarter: Leveraging GIS, BIM, and Open Data for Better Site Selection & Collaboration

    Live Webinar

    Register for Free
  • Slate Reimagined: The Surprising Advantages of Slate Rainscreen Cladding

    Webinar

    Register Now
  • The State of Residential Design Today: Innovations and Insights from RADA-Winning Architects

    Webinar

    Register for Free
All Events