Loft Upon Cork

Project Details

Project Name
Loft Upon Cork
Location
WinchesterVA
Project Types
Project Scope
Renovation/Remodel
Shared By
dmadsen
Project Status
Built
Size
2,108 ft²

Project Description

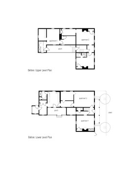
This project is the comprehensive renovation of, and small addition to, a vernacular Victorian house. The house was built in the late 1800’s, and is located in a downtown historic district. The house was originally four apartments, and is now converted into two. The first floor apartment is for the gardener. The second floor is for our client, a retired pathologist who collects art, scientific oddities, and rare books. He wanted his new loft apartment to function as a salon and private museum. This building, along with an adjacent house also owned by the client, encloses an intensively landscaped, formal garden.

Because the building sits within a historic district, the street front façade was left unchanged. The only change along the alley façade was the insertion of a second floor, windowless library, clad in a pop art, Sol LeWitt- inspired, lap siding composition. More artistic license was taken with the courtyard facades, which face a private garden. The courtyard elevations are a juxtaposition of existing pieces, sympathetic renovations, and contrasting modern insertions. The courtyard porches were redesigned and rebuilt, and a new structure was built over an old, existing cistern. In addition to a kitchen, bath, and bedroom, the project houses a garden library which overlooks a Karesansui rock garden, a 13’ x 13’ x 13’ windowless secret library, and a barrel-vaulted main salon. A Wundercamera in the main salon is a changeable wooden apparatus that holds the client’s collection of art objects, skeletal remains, antique scientific equipment, and antique botanical and entomological specimens.

Upcoming Events

  • Design Smarter: Leveraging GIS, BIM, and Open Data for Better Site Selection & Collaboration

    Live Webinar

    Register for Free
  • Slate Reimagined: The Surprising Advantages of Slate Rainscreen Cladding

    Webinar

    Register Now
  • The State of Residential Design Today: Innovations and Insights from RADA-Winning Architects

    Webinar

    Register for Free
All Events