Loblolly house

Project Details

Project Name
Loblolly house
Project Types
Other
Project Scope
New Construction
Shared By
Chinnu
Project Status
On the Boards/In Progress
Size
2,200 ft²

Project Description

2005 RADA
On The Boards / Merit

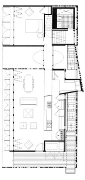
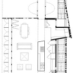
This house on the Chesapeake Bay defers to the natural site and distills its essence. Located on a Cordgrass marsh, the house rests on random pilings that blend in with the pine grove. Water from a shallow pond under the house is pumped to the Cordgrass-covered roof. The runoff flows through an oval aperture in the atrium and back down into the pond, offering a cosmic metaphor for the way that water unites the landscape and sky.

That reductive approach to architecture led KieranTimberlake to invent a hybrid house that combines site-built and prefab components. Its parts include an aluminum frame that clips together on site, floor and ceiling coffers with integrated wiring and mechanical systems, and pre-assembled kitchen and bathroom boxes. “Most architecture is space, and we’re mostly just shipping the materials around the edge,” says Stephen Kieran, FAIA. The exterior skin features retractable glass doors and polycarbonate shutters on the waterfront side of the house that can close it off completely—site-responsive solutions that impressed the judges.

Upcoming Events

  • Design Smarter: Leveraging GIS, BIM, and Open Data for Better Site Selection & Collaboration

    Live Webinar

    Register for Free
  • Slate Reimagined: The Surprising Advantages of Slate Rainscreen Cladding

    Webinar

    Register Now
  • The State of Residential Design Today: Innovations and Insights from RADA-Winning Architects

    Webinar

    Register for Free
All Events