LMCC’s Arts Center at Governors Island

Project Details

Project Name
LMCC’s Arts Center at Governors Island
Location
110 Andes Road, Governors IslandBuilding 110New YorkNY10004
Project Types
Cultural
Shared By
Madeleine D’Angelo
Project Status
Built
Year Completed
2019
Style
Modern
Size
40,000 ft²

Project Description

FROM THE ARCHITECTS:

Part of the ongoing transformation of New York’s Governors Island into a vibrant cultural destination, this adaptive reuse of an 1870s munitions storage warehouse supports local artists while providing generous space for public exhibitions and events.

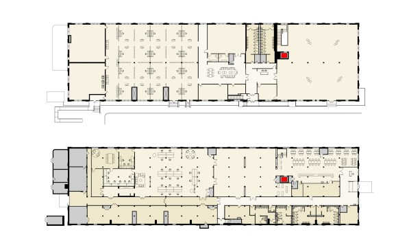
The new arts center is the first permanent home on the island for the Lower Manhattan Cultural Council (LMCC), founded in 1973 to serve local artists and the community with grants, studio space, and public exhibitions and events. To accommodate the organization’s eclectic program, the design called for opening up the interior of the long and narrow two-story building—previously a warren of military offices—and exposing and restoring the original truss structure, creating 40,000 square feet of flexible, loft-like space.

The facility includes a luminous main gallery on the upper level, with an adjoining reception area behind a clear glass wall that preserves the expansive quality of the space. Smaller rooms for performance, rehearsal, and exhibition as well as art studios arrayed on both levels enjoy abundant natural light. A new stair and elevator allow for integrated, accessible programming, and a café on the lower level, framed by an exposed-brick wall, offers views of Lower Manhattan and the harbor. In addition to retaining much of the brick, wood, and steel from the existing building, the renovation incorporates energy-efficient systems throughout.

Upcoming Events

  • Slate Reimagined: The Surprising Advantages of Slate Rainscreen Cladding

    Webinar

    Register Now
  • The State of Residential Design Today: Innovations and Insights from RADA-Winning Architects

    Webinar

    Register for Free
  • Specifying Smarter with Copper-Clad Aluminum (CCA) Metal-Clad Cable

    Webinar

    Register for Free
All Events