Little Island House

Project Details

Project Name
Little Island House
Location
West FalmouthMA
Project Types
Single Family
Project Status
Built
Year Completed
2013
Size
3,325 ft²

Project Description

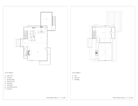
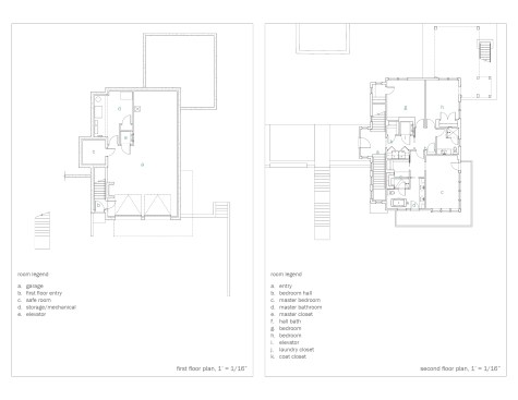
Located high on the Cape Cod shore, overlooking Little Island and Buzzards Bay, this new single family home replaces a standard 1950’s one story rambler. The architecture controlled the huge change in grade, and created a house with unobstructed views of the wide western expanse of water. State seashore codes do not allow the trimming or removal of mature trees, nor major changes to existing grades. The former house had been sited low on the property hidden behind mature trees, with no view of the water. The new shingle clad house took advantage of the great change in grade by positioning the different spaces in the house according to the views. Entering the site up a steep road onto a broad gravel drive court provides the first major view of the house rising two and one half stories to the south. The mass of the house is organized as an up-side-down house with public spaces on upper floors providing the best views the water. All the major spaces open to 180 degrees of light and view, with the circulation and stairs commanding the eastern side tight to a grove of Cape oaks. The lowest level hunkers into the grade containing garage, storage and entry from the drive court to the main stair. The second level introduces the main entrance facing a second family house, and contains all bedrooms. The third level contains all public spaces with unobstructed views to the water, and the fourth floor contains a private study loft.

Upcoming Events

  • Build-to-Rent Conference

    JW Marriott Phoenix Desert Ridge

    Register Now
  • Reimagining Sense of Place: Materiality, Spatial Form, and Connections to Nature

    Webinar

    Register for Free
  • Homes that Last: How Architects Are Designing a Resilient Future

    Webinar

    Register Now
All Events