Linear Cabin

Project Details

Project Name
Linear Cabin
Location
St. GermainWis.
Shared By
katie_gerfen
Project Status
Built
Year Completed
2016
Size
900 ft²

Project Description

Text by Clay Risen

Call to mind a picture of the typical woodland cottage, and it’s unlikely you’d imagine Johnsen Schmaling Architects’ project in the northern Wisconsin woods: the 900-square-foot Linear Cabin, which won a 2016 AIA Small Projects Award, is a sparse yet striking arrangement of three rectilinear boxes separated by two voids and organized under a continuous, flat roof.

Starting with the utilitarian purpose of rural cabins―a step up from a tent, a place for sleeping and eating between hikes and fishing trips―the Milwaukee-based firm focused on a three-part program, with little room for amenities. The firm consciously avoided the sort of rural-modern affectations that define many of its neighbors. “We didn’t want it to be a formulaic, slap-some-wood-slats-on-it sort of project,” says principal Brian Johnsen, AIA, who co-founded the firm with Sebastian Schmaling, AIA. “We wanted to make something simple and efficient.”

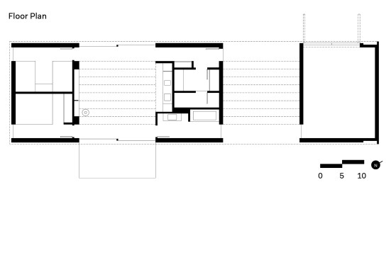
The first volume provides storage for canoes, fishing gear, and other outdoor equipment; the second contains a kitchen, bathroom, laundry, and boiler; and the third has two bunk rooms for sleeping. The project is wrapped in regionally sourced black pine cladding outside and varnished cedar and knotty pine inside, creating a severe exterior and rustic, inviting interior. The floor is polished concrete throughout.

The spaces between the three identically sized volumes play multifunctional roles: one a carport, entryway, and covered terrace; the other a living area called the hearth room. Floor-to-ceiling, lift-slide glass doors expose the hearth room to the elements during warmer months, while a wood-burning stove helps offset harsh winter temperatures. This indoor–outdoor space accommodates most of the socializing and entertaining, and provides compelling views toward nearby Alma Lake on one side and down the gravel road that connects the house to the outside world on the other. “By pulling the volumes apart, we’ve provided voids that create a connection to the landscape,” says Johnsen, whose firm, founded in 2003, has developed a reputation for small, high-design residential projects marked by an attention to detail and carefully selected materials.

The building fits surprisingly well in its wooded context, a tribute to its understated character and sympathetic material palette. “There’s a battle we have on every project,” Johnsen says. “We see this beautiful lot, and we’re asked to place something foreign on it. We’re always torn, but it’s our job.” The result is a paradox, a strong statement that slips easily into natural surroundings. “It reminds me of stacks of firewood that people leave in the woods to dry,” Johnsen says. “It feels like you’re almost camping.”

Project Credits
Project: Linear Cabin, St. Germain, Wis.
Client: Matt and Julie Sager
Architect/Interior Designer: Johnsen Schmaling Architects, Milwaukee . Brian Johnsen, AIA, Sebastian Schmaling, AIA (principals-in-charge); Matt Wendorf (project manager)
Structural Engineer: Core 4 Engineering
General Contractor: J&J Lee Construction
Size: 900 square feet
Cost: Withheld

This project won a 2016 AIA Small Projects Award.

FROM AIA WISCONSIN:

This small, unassuming family retreat sits atop a steep bluff overlooking Alma Lake in northern Wisconsin. The cabin is organized as a series of three identically sized nearly opaque boxes separated by spatial voids. A continuous thin roof plane spans the entire length of the building. The “storage box” offers space for canoes, tools and logging equipment. The “service box” contains the cabin infrastructure, including entry, kitchen, bathroom, laundry and boiler room. The “sleeping box” houses two bunk rooms. The void between the storage and service boxes is unenclosed, framing views from the clearing toward the lake. The void between the service and sleeping boxes functions as the hearth room, with the center of the cabin anchored by a wood-burning stove. The wide lift-slide glass doors bracketing the hearth room allow for unobstructed views through the building from the outside and into the wooded landscape from within. The project utilizes a palette of regionally sourced materials. The boxes are clad with blackened pine planks. Varnished cedar accentuates the continuous horizontal reveal between the building boxes and the roof plane. With a durable polished dark-grey concrete floor, the interior walls and ceilings are clad in crisply detailed knotty pine.

Jury Comment: “The cabin has an abstract and artful quality without sacrificing function. Careful material choice and detailing reinforce the effect. The rigor of the material palette and massing creates a profound retreat in the woods.”

Upcoming Events

  • Design Smarter: Leveraging GIS, BIM, and Open Data for Better Site Selection & Collaboration

    Live Webinar

    Register for Free
  • Slate Reimagined: The Surprising Advantages of Slate Rainscreen Cladding

    Webinar

    Register Now
  • The State of Residential Design Today: Innovations and Insights from RADA-Winning Architects

    Webinar

    Register for Free
All Events