Lincoln Building

Project Details

Project Name
Lincoln Building
Project Types
Project Scope
Renovation/Remodel
Shared By
almilews
Project Status
Built
Certifications & Designations
LEED Gold

Project Description

Syracuse University, working with community organizations and residents, began the Near West Side Initiative with the goal of revitalizing the city’s Near West Side neighborhood. Our firm implemented a transformative renovation of the Lincoln Supply Building as a prototype for development in the neighborhood and a case study for similar initiatives.
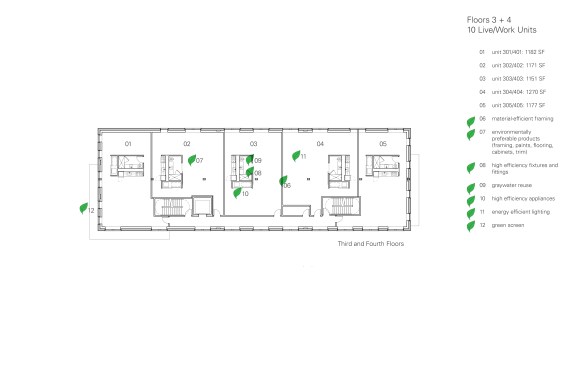
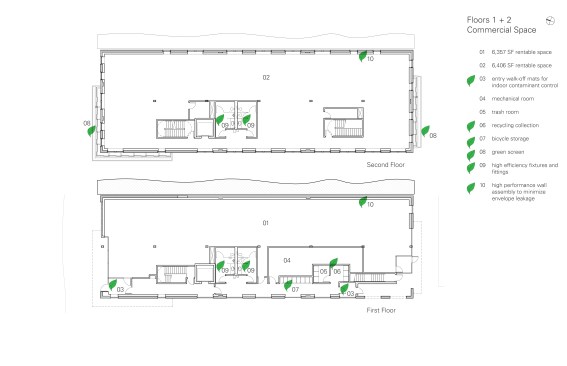
In collaboration with the School of Architecture, the Syracuse Center of Excellence, UPSTATE, consultants and community stakeholders, we developed a multi-use program consisting of two floors of commercial space and two floors of work/live residences to nourish urban vitality with a range of uses throughout the day. The design achieved a LEED Gold rating.
Changes to the building were designed to be of our time, affordably constructed and sustainable in that they provide significant energy savings to the user and have minimal environmental impact during construction and long-term operations. Project features include a geo-thermal heat pump system, a green roof, on-site rain gardens and an exterior “green screen” that wraps the existing facade, providing shade for the interior in growing months.
Our office objectively analyzed the economic and human benefits of the chosen green technologies, demonstrated how they can be realized and communicated their benefit for public knowledge.

Upcoming Events

  • Design Smarter: Leveraging GIS, BIM, and Open Data for Better Site Selection & Collaboration

    Live Webinar

    Register for Free
  • Slate Reimagined: The Surprising Advantages of Slate Rainscreen Cladding

    Webinar

    Register Now
  • The State of Residential Design Today: Innovations and Insights from RADA-Winning Architects

    Webinar

    Register for Free
All Events