Lily

Project Details

Project Name
Lily
Location
ShenandoahTX
Architect
Gracepoint Homes
Project Types
Shared By
dmadsen
Project Status
Built

Project Description

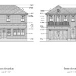
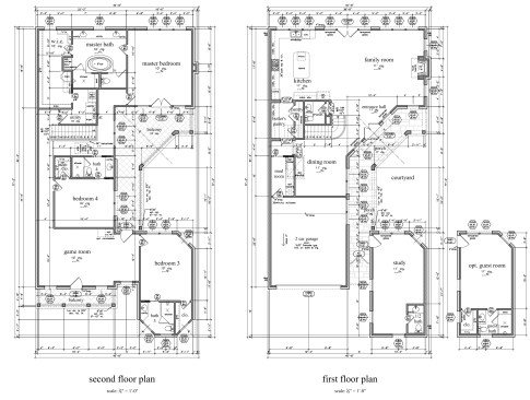
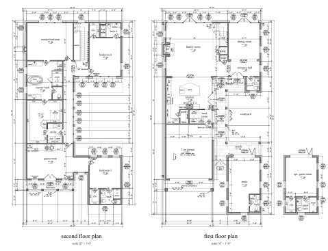
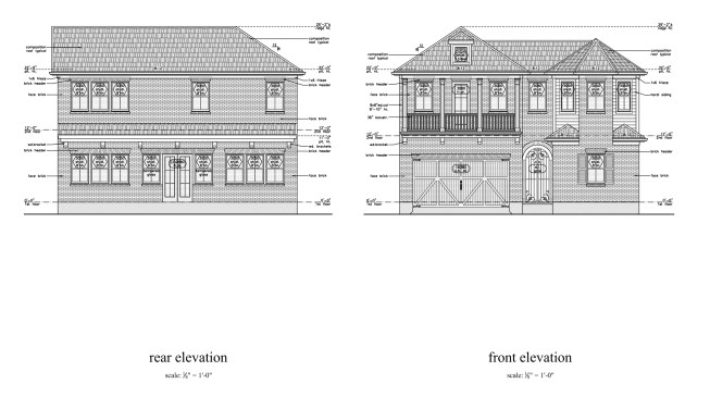
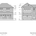
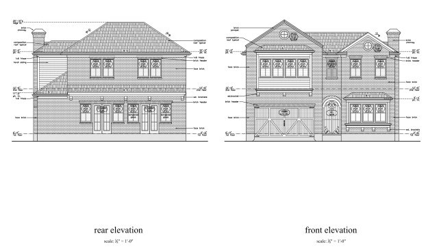
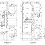
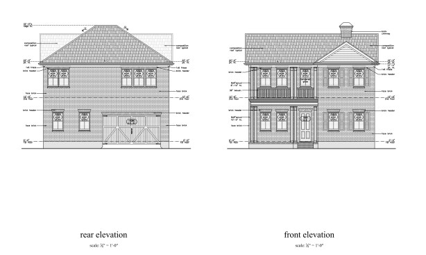
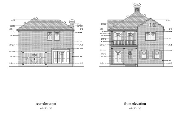
Lily is what we consider “urban suburban,” designed to appeal to people who want to live near the employment and entertainment districts of The Woodlands. The result is a community of higher-density courtyard homes as large as 4,000 square feet — large enough for families and for expansive owner retreats. Central courtyards welcome guests, who must pass through a gate to reach the front entrance in several of the designs. Much of each C-shaped home overlooks the courtyard, which creates both a grand entry and additional living space for seamless indoor-outdoor entertaining. Rear alleyways are incorporated into the land plan, protecting the integrity of the elevations within the center of the community. Front driveways are available for homesites along the perimeter of Lily, giving buyers options. The community also will have walking trails with sitting areas.

Lily is in Shenandoah, a town near The Woodlands, and is zoned to schools that serve The Woodlands, an important consideration for families looking for a new home in the area and finding that few remain in The Woodlands proper. Another bonus for residents of Lily is a lower city tax rate than that paid by residents of The Woodlands. Because this type of home design is a departure from the traditional architecture found in the area, we had to submit extensive paperwork to city officials in Shenandoah to showcase Lily’s defining characteristics. A prime location, highly regarded schools, carefree living with exterior maintenance and yard work included in HOA dues and distinctive home designs fulfill the wish list of buyers wanting the advantages of a suburban lifestyle and the excitement of an urban setting.

Upcoming Events

  • Design Smarter: Leveraging GIS, BIM, and Open Data for Better Site Selection & Collaboration

    Live Webinar

    Register for Free
  • Slate Reimagined: The Surprising Advantages of Slate Rainscreen Cladding

    Webinar

    Register Now
  • The State of Residential Design Today: Innovations and Insights from RADA-Winning Architects

    Webinar

    Register for Free
All Events