Light Grain

Project Details

Project Name
Light Grain
Project Types
Commercial
Project Scope
Adaptive Reuse
Shared By
Andrea Timpano
Project Status
On the Boards/In Progress
Size
4,800 ft²

Project Description

This project was named a Merit winner in the 70th Annual Progressive Architecture Awards, and was featured in the March 2023 issue of ARCHITECT.

“Adaptive reuse is an important format for all of us to be working in. [For this project], they successfully riff off the existing buildings, making them more dynamic and interesting while maintaining their original character.” —Juror Carrie Byles, FAIA

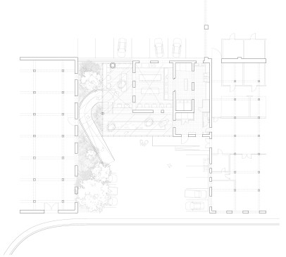
This bakery occupies a new infill addition between two old Toronto buildings, celebrating bread as metaphor, inspiration, and commodity. Dubbed Light Grain by locally based Ja Architecture Studio, the 4,800-square-foot solution develops three distinctive rooms—the Entry, the Diner, and the Hearth—around a new totemic circular column.

The architects’ interventions create an evocative sequence of spaces where a bold but simple structure recasts the simple industrial buildings that it bridges. A new entry ramp satisfies accessibility requirements while creating a generous spatial experience for all visitors. Inside, the Diner borrows from the familiar linear organization of the vernacular eatery to display and sell bread and other baked goods made in the Hearth—the production kitchen, cantilevered over below-grade dining areas.

The JAS team also gave careful consideration to the building’s roof. They covered the L-shaped space between the existing buildings with a new wood-framed, saw-toothed structure set at an oblique angle to those buildings. Over the entry ramp, the framing is left exposed. The angled ceiling over the new interior spaces, meanwhile, features round skylights.

PROJECT CREDITS
Project: Light Grain, Toronto.
Architect: Ja Architecture Studio, Toronto. Nima Javidi, OAA; Behnaz Assadi; Kyle O’Brien; Tianyu Zhang; Ece Ulusoy
Mechanical Engineer: GPY Engineering
Structural Engineer: Moses Structural Engineering
Electrical Engineer: Summit Engineering
Construction Manager: Herrington and Associates
Landscape Architect: Behnaz Assadi, Ja Architecture Studio

Upcoming Events

  • Design Smarter: Leveraging GIS, BIM, and Open Data for Better Site Selection & Collaboration

    Live Webinar

    Register for Free
  • Slate Reimagined: The Surprising Advantages of Slate Rainscreen Cladding

    Webinar

    Register Now
  • The State of Residential Design Today: Innovations and Insights from RADA-Winning Architects

    Webinar

    Register for Free
All Events