Lick-Wilmerding High School Historic Renovation & Expansion

Project Details

Project Name
Lick-Wilmerding High School Historic Renovation & Expansion
Location
San FranciscoCA
Architect
EHDD
Project Types
Education
Project Status
Built
Year Completed
2019
Size
50,488 ft²

Project Description

FROM THE ARCHITECTS:

Project Overview

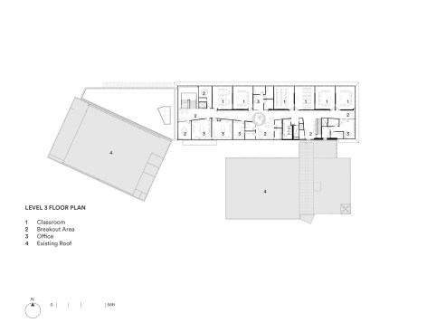
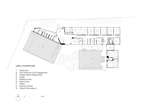
The project consists of a major renovation of, and addition to, the main classroom/administrative building and adjacent science labs on the Lick Wilmerding Campus in San Francisco. Lick Wilmerding is a well-established industrial arts school dating from 1895. Traditionally, it was a completely free private school funded through various trusts. While the School can no longer offer free tuition, it has continued to provide generous scholarships as a means to maintain its commitment to inclusion. The School's motto of "Head, Heart, Hands" emphasizes its legacy of academic excellence, public service, and industrial art. The project adds classrooms, additional shared offices and support spaces. The building negotiates the physical constraints of a tight urban campus and design constraints of being a historic structure. Hemmed in by other historic buildings and a major urban street, the design was extremely disciplined about using every square inch to maximize the desired use and functional flexibility, exceeding original program expectations. Working within the historic structural grid, new post-tensioned slabs and lateral systems were utilized to allow for ease of future adaptability. The project cost initially did not include historic work. However, the methodical approach of reusing some of the existing structures, making spaces as efficient as possible, and selecting simple finishes helped alleviate the added cost of historic preservation. The design takes advantage of being located on a pedestrian-dense section of Ocean Ave by creating a new main entry that promotes the identity of the School. The transparency of the entry showcases built student works and highlights the Center for Civic Engagement: the physical manifestation of the School's motto of "Head, Heart, Hands." The original mid-century modern building was designed by local architect William Merchant, an alum of the School. It employed a delicate wood and aluminum framed curtain wall system, which was state-of-the-art technology for its time. The third-floor addition pays homage to this façade, employing a high-performance curtain wall system to create a taut ethereal glass box that rests lightly on the historic building below. The interior layout breaks away from the traditional disorienting double-loaded corridor. It provides daylit hallways that open towards flexible shared break-out spaces, promoting the School's emphasis on collaboration and interaction. New and renovated classrooms have minimal finishes to create more volume, height, and flexibility while allowing more daylight. Exposed concrete and simple finishes reinforce the industrial ethos of the School where nothing is precious. This has allowed students to take over the space, using it for the storage, creation, and display of their craft. PV installation was made financially feasible through a power-purchase agreement and allowed the project to target net-zero energy use. The ultimate goal is for the project's unique features to educate the users and community, raising their awareness of sustainability and equity issues.

Project History

The project started around 2010 when the School realized that it needed to increase enrollment to meet growing demand. In 2014, an initial master plan was completed that looked at several options for adding the needed square footage to different areas of the campus to meet the desired enrollment capacity. The master plan assessed the existing campus facilities, provided initial programming, utility impacts, construction logistics, and rough costs. When our team was selected, we quickly realized the directive from the master plan document, while technically extensive, lacked heart. In other words, simply adding square footage and the required program would not generate a successful user experience. Therefore, we started the project with a stakeholder engagement process to understand the community's ethos, experience, shared values. Included in this intake were students, faculty, staff, parents, alumni, and external organizations that use the School's facilities. This initial intake revealed real opportunities to allow the School to retain and grow its excellent programs and legacy, support its faculty and student body by revitalizing the School's public identity and visibility, designing more inclusive and welcoming spaces, and creating "third spaces" that foster social connections and collaborative learning. Being a school with its own architecture program, the School understood and embraced the inclusion of these socially-oriented goals. Out of these goals came the idea of relocating the main campus entry to reshape the school’s identity and the public's perception. Asking "how will the public use this space" became a common refrain that helped locate important community spaces and highlight the Center for Civic Engagement. When the project went before planning review, it did not encounter any public resistance, an indicator that the outreach effort to the local community and immediate neighbors was successful in communicating the project's public benefits. The School was also very interested in all aspects of sustainability. As an industrial arts school always at the forefront of technology, they saw this project as an chance to proudly showcase innovation relevant to current day issues. We researched recycled water, composting toilets, and energy conservation strategies. Net-zero energy emerged as the strongest goal as the cost-benefit analysis of the other systems made them harder to justify financially. After construction was complete, we continued to check in with the client to fine tune performance issues. Through the disruptions of wildfires, energy issues, and the pandemic, we realized that the design was quite resilient and flexible and enabled the school to resolve operational issues quickly, which helped make for a less disruptive educational experience. The users’ overall satisfaction was captured through a formal post-occupancy survey. The building’s high ratings reflect the success of the combined efforts of the School and design team to make this a project that was impactful for its users.

PROJECT CREDITS
Project: Lick-Wilmerding High School Historic Renovation & Expansion, San Francisco
General Contractor: Truebeck Construction
Engineer – Civil: BKF Engineers
Engineer – MEP: Integral Group
Engineer – Structural: Forell/Elsesser
Landscape Architect: GLS Landscape
Commissioning Consultant: Guttman & Blaevoet
Lighting Consultant – Architecture & Light Acoustical Consultant – Charles M. Salter Associates Daylighting Consultant – University of Washington, Integrated Design Lab

Upcoming Events

  • Build-to-Rent Conference

    JW Marriott Phoenix Desert Ridge

    Register Now
  • Reimagining Sense of Place: Materiality, Spatial Form, and Connections to Nature

    Webinar

    Register for Free
  • Homes that Last: How Architects Are Designing a Resilient Future

    Webinar

    Register Now
All Events